Valutazione immobiliare indipendente, accurata e gratuita
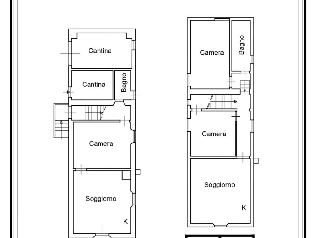
Casa indipendente in vendita a Quarrata in zona Catena a 235.000 € (cod.65820290)
Caasa non ha sufficienti informazioni per commentare la casa indipendente a Quarrata in zona Catena - 65820290.
Analisi immobiliare
I dati in posseso di Caasa per quest'immobile sono insufficienti, inaffidabili o contraddittori per proporre un'analisi attendibile.
Mercato immobiliare a Quarrata
Per quanto riguarda più in generale la città di Quarrata, sono presenti al momento più di 300 annunci per
case indipendenti in vendita (meno del 10% dell'intera provincia)
e il maggior numero di annunci per questa tipologia sono relativi alla zona di Tizzana, mentre nella zona di Catena è presente un numero significativamente inferiore di annunci.
La richiesta media nella zona dove sorge la casa indipendente (Catena) è pari a
1.855 €/m², molto vicina ai valori della zona Tizzana che sono i più alti della città .
Per quanto riguarda la dinamica dei prezzi, negli ultimi 6 mesi i prezzi medi in tutta la città per case indipendenti in vendita sono
in aumento (+4,94%).
NOVITÀ Il risultato che vedi dipende dai dati che siamo riusciti ad estrarre dall'annuncio: ottieni una stima più accuranta di questo immobile, inserendo dati più precisi.
N.B. L'Opinione di Caasa® è un servizio sperimentale realizzato tramite tecniche di Intelligenza Artificiale, fornito senza alcuna garanzia di correttezza e completezza. Leggi il disclaimer o segnalaci un problema.
IMMAGINI
IN SINTESI
PROPOSTO DA:
Agenzia Immobiliare Geom. Giannini Marco srl
