Valutazione immobiliare indipendente, accurata e gratuita

Casa indipendente in vendita a Pescia in zona Veneri (cod.64eba615)

Caasa non ha sufficienti informazioni per commentare la casa indipendente a Pescia in zona Veneri - 64eba615.

Analisi immobiliare
I dati in posseso di Caasa per quest'immobile sono insufficienti, inaffidabili o contraddittori per proporre un'analisi attendibile.
Mercato immobiliare a Pescia
Per quanto riguarda più in generale la città di Pescia, sono presenti al momento oltre 500 annunci per case indipendenti in vendita (meno del 10% dell'intera provincia) e il maggior numero di annunci per questa tipologia sono relativi proprio alla zona di Veneri.
La richiesta media nella zona dove sorge la casa indipendente (Veneri) è pari a 1.540 €/m² e ne fa la più pregiata della città .
Relativamente alla dinamica dei prezzi, possiamo dire che negli ultimi 6 mesi i prezzi medi in tutta la città per case indipendenti in vendita sono in aumento (+3,64%).

NOVITÀ Il risultato che vedi dipende dai dati che siamo riusciti ad estrarre dall'annuncio: ottieni una stima più accuranta di questo immobile, inserendo dati più precisi.

N.B. L'Opinione di Caasa® è un servizio sperimentale realizzato tramite tecniche di Intelligenza Artificiale, fornito senza alcuna garanzia di correttezza e completezza. Leggi il disclaimer o segnalaci un problema.

IMMAGINI

IN SINTESI

Prezzo:
nd
Superficie:
n.d. m²
Piano:
Bagni:
2
Classe energetica:
n.d.
Città:
Pescia (PT)
Indirizzo:
Pubblicato:
sab 23 agosto 2025

PROPOSTO DA:

STUDIO CANOVA immobili & crediti

DESCRIZIONE

con cantina in asta giudiziaria

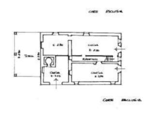
NUOVA PROPOSTA IMMOBILE LIBERO Trattasi di un'abitazione di 11,5 vani situato nel comune di Pescia (PT), frazione Veneri, in Via del Pratalozzo. L'edificio principale, di origine rurale e di remota costruzione, costituisce una unità immobiliare ad us […]

  • yescasa.it