Valutazione immobiliare indipendente, accurata e gratuita
Appartamento in vendita a Montecatini-Terme in zona Vico a 275.000 € (cod.650ad3e5)
Caasa non ha sufficienti informazioni per commentare l'appartamento a Montecatini-Terme in zona Vico - 650ad3e5.
Analisi immobiliare
I dati in posseso di Caasa per quest'immobile sono insufficienti, inaffidabili o contraddittori per proporre un'analisi attendibile.
Mercato immobiliare a Montecatini-Terme
Per quanto riguarda più in generale la città di Montecatini-Terme, sono presenti al momento oltre 500 annunci per
appartamenti in vendita (quasi il 20% dell'intera provincia)
e il maggior numero di annunci per questa tipologia sono relativi proprio alla zona di Vico.
La richiesta media nella zona dove sorge l'appartamento (Vico) è pari a
1.600 €/m², molto vicina ai valori della zona Montecatini Alto che sono i più alti della città .
Relativamente alla dinamica dei prezzi, possiamo dire che negli ultimi 6 mesi i prezzi medi in tutta la città per appartamenti in vendita sono
in sostanziale aumento (+6,22%).
NOVITÀ Il risultato che vedi dipende dai dati che siamo riusciti ad estrarre dall'annuncio: ottieni una stima più accuranta di questo immobile, inserendo dati più precisi.
N.B. L'Opinione di Caasa® è un servizio sperimentale realizzato tramite tecniche di Intelligenza Artificiale, fornito senza alcuna garanzia di correttezza e completezza. Leggi il disclaimer o segnalaci un problema.
IMMAGINI
IN SINTESI
DESCRIZIONE
di recente ristrutturazione con cantina con giardino di recente ristrutturazione di recente costruzione
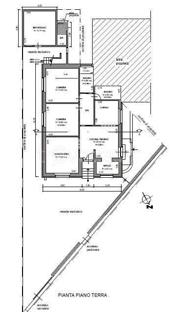
Bifamiliare in orizzontale nella zona residenziale della Biblioteca. Proponiamo in vendita una porzione di bifamiliare orizzontale situata nell’elegante e tranquilla zona residenziale della Biblioteca. L'immobile è stato recentemente ristrutturato e riqualificato dal punto di vista energetico, con interventi effettuati poco più di un anno fa. L’ingresso, che conserva il fascino e lo stile signorile del villino originario, introduce alla zona giorno composta da un ampio soggiorno e da una spaziosa cucina con zona pranzo. La cucina, come si evince dalla planimetria, è ben separata e riservata, così come il comodo ripostiglio adiacente. La zona notte si articola in due camere da letto e due bagni, uno dei quali attrezzato anche come lavanderia. All’esterno è presente un ampio locale di circa 16 mq, attualmente adibito a ripostiglio, ma facilmente trasformabile in studio, laboratorio, palestra o altro ambiente funzionale secondo le esigenze. Completano la proprietà un resede esclusivo, attualmente utilizzato come giardino e area parcheggio. Per motivi di riservatezza non sono presenti indirizzo esatto e foto esterne. Contattatemi per maggiori dettagli e programmare una visita


