Valutazione immobiliare indipendente, accurata e gratuita
Appartamento in vendita a Montecatini-Terme in zona Vico a 49.500 € (cod.6503bb4e)
Caasa non ha sufficienti informazioni per commentare l'appartamento a Montecatini-Terme in zona Vico - 6503bb4e.
Analisi immobiliare
I dati in posseso di Caasa per quest'immobile sono insufficienti, inaffidabili o contraddittori per proporre un'analisi attendibile.
Mercato immobiliare a Montecatini-Terme
Per quanto riguarda più in generale la città di Montecatini-Terme, sono presenti al momento oltre 500 annunci per
appartamenti in vendita (quasi il 20% dell'intera provincia)
e il maggior numero di annunci per questa tipologia sono relativi proprio alla zona di Vico.
La richiesta media nella zona dove sorge l'appartamento (Vico) è pari a
1.625 €/m² e ne fa la più pregiata della città .
Possiamo inoltre considerare che in tutta la città negli ultimi 6 mesi, i prezzi per appartamenti in vendita sono
in sostanziale aumento (+6,22%).
NOVITÀ Il risultato che vedi dipende dai dati che siamo riusciti ad estrarre dall'annuncio: ottieni una stima più accuranta di questo immobile, inserendo dati più precisi.
N.B. L'Opinione di Caasa® è un servizio sperimentale realizzato tramite tecniche di Intelligenza Artificiale, fornito senza alcuna garanzia di correttezza e completezza. Leggi il disclaimer o segnalaci un problema.
IMMAGINI
IN SINTESI
PROPOSTO DA:
STUDIO CANOVA immobili & crediti
DESCRIZIONE
di recente costruzione con ascensore di recente costruzione in asta giudiziaria
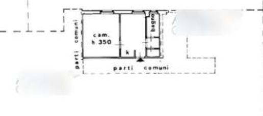
NUOVA PROPOSTA IMMOBILE LIBERO Appartamento al piano terzo con ascensore situato a Montecatini Terme (PT) in Piazza del Popolo, Vicolo dell'Olivo. Attualmente adibito a ufficio. L’unità è composta da due vani, disimpegno e servizio igienico. L’immobile si trova in una zona centrale e ben servita, ideale per attività professionali o studi privati. Per te la possibilità di ricevere una consulenza telefonica personalizzata per ottenere un preventivo per il mutuo a condizioni vantaggiose con i nostri partner, il consulente ti fornirà tutte le informazioni e ti guiderà nelle possibilità di aggiudicarti questo affare. L'immobile pubblicato al momento è sottoposto a procedura di vendita legale; Gescom srl è specializzata nella ricerca e pianificazione di investimenti immobiliari secondo innovative strategie di acquisto. Contattaci subito per una consulenza telefonica con uno dei nostri esperti, che ti aiuterà a valutare canali distinti di acquisto dell’immobile, come la procedura di vendita diretta senza ricorrere all’asta (d.lgs. 149/2022) e la possibilità di stralcio immobiliare. Le informazioni sopra riportate non sostituiscono l'avviso pubblicato dal Tribunale competente né l'integrale gestione da parte del delegato designato. Il testo e le specifiche indicate nella presente pagina sono generate automaticamente tramite l’utilizzo di software e/o da A.I. Gescom srl invita a verificare le formazioni e i materiali multimediali sui canali ufficiali, declinando fin d'ora ogni responsabilità su eventuali errori o incongruenze. Gescom srl, leader negli stralci immobiliari e nella consulenza tecnico-legale, non si occupa di attività di intermediazione immobiliare di cui alla legge 39/89. Cl. energ. da verificare. Le foto pubblicate nel presente annuncio sono indicative e non esaustive della tipologia, qualità, consistenza e indicazione geografica dell'immobile







