Valutazione immobiliare indipendente, accurata e gratuita
Casa indipendente in vendita a Montale a 750.000 € (cod.652f45b0)
Caasa non ha sufficienti informazioni per commentare la casa indipendente in vendita a Montale - 652f45b0.
Analisi immobiliare
I dati in posseso di Caasa per quest'immobile sono insufficienti, inaffidabili o contraddittori per proporre un'analisi attendibile.
Mercato immobiliare a Montale
Per quanto riguarda più in generale il comune di Montale, sono presenti al momento più di 200 annunci per
case indipendenti in vendita (meno del 5% dell'intera provincia)
e il maggior numero di annunci per questa tipologia sono relativi alla zona di Stazione.
Per quanto riguarda la dinamica dei prezzi, negli ultimi 6 mesi i prezzi medi in tutto il comune per case indipendenti in vendita sono
in sostanziale aumento (+7,38%).
NOVITÀ Il risultato che vedi dipende dai dati che siamo riusciti ad estrarre dall'annuncio: ottieni una stima più accuranta di questo immobile, inserendo dati più precisi.
N.B. L'Opinione di Caasa® è un servizio sperimentale realizzato tramite tecniche di Intelligenza Artificiale, fornito senza alcuna garanzia di correttezza e completezza. Leggi il disclaimer o segnalaci un problema.
IMMAGINI
IN SINTESI
PROPOSTO DA:
Baroni s.r.l.
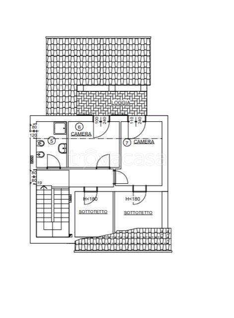
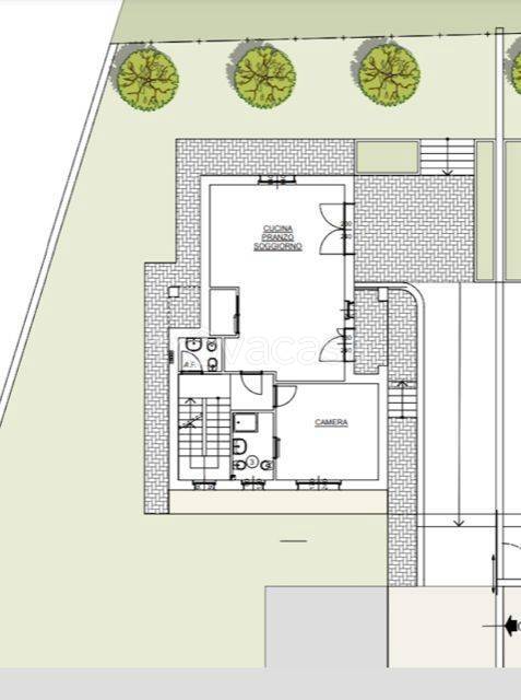
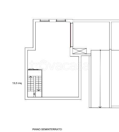
DESCRIZIONE
di nuova costruzione con giardino con terrazza di nuova costruzione
In prestigiosa zona residenziale, proponiamo in vendita elegante villetta di nuova costruzione, libera su quattro lati. L’abitazione, disposta su tre livelli per una superficie di circa 290 mq, si presenta con ambienti ampi e luminosi.?Il piano terra accoglie una raffinata zona living open space con soggiorno e cucina, bagno di servizio e camera matrimoniale con bagno privato, perfetta anche come suite padronale o stanza ospiti. La zona notte, al primo piano, è composta da due camere da letto con accesso a terrazzo loggiato, due vani sottotetto e servizio. Al piano seminterrato, direttamente collegato all’interno dell’abitazione, troviamo una taverna di 44 mq, ideale come spazio multiuso. La proprietà è circondata da un giardino privato di circa 280 mq, perfetto per vivere l’esterno in totale relax. Rifiniture personalizzabili. Consegna prevista: aprile 2026

