Valutazione immobiliare indipendente, accurata e gratuita
Appartamento in vendita ad Agliana a 240.000 € (cod.65990cef)
Caasa non ha sufficienti informazioni per commentare l'appartamento in vendita ad Agliana - 65990cef.
Analisi immobiliare
I dati in posseso di Caasa per quest'immobile sono insufficienti, inaffidabili o contraddittori per proporre un'analisi attendibile.
Mercato immobiliare ad Agliana
Per quanto riguarda più in generale la città di Agliana, sono presenti al momento più di 200 annunci per
appartamenti in vendita (meno del 5% dell'intera provincia)
e il maggior numero di annunci per questa tipologia sono relativi alla zona di San Michele.
La dinamica dei prezzi in tutta la città mostra che negli ultimi 6 mesi, i prezzi per appartamenti in vendita sono
in debole aumento (+1,91%).
NOVITÀ Il risultato che vedi dipende dai dati che siamo riusciti ad estrarre dall'annuncio: ottieni una stima più accuranta di questo immobile, inserendo dati più precisi.
N.B. L'Opinione di Caasa® è un servizio sperimentale realizzato tramite tecniche di Intelligenza Artificiale, fornito senza alcuna garanzia di correttezza e completezza. Leggi il disclaimer o segnalaci un problema.
IMMAGINI
IN SINTESI
DESCRIZIONE
di nuova costruzione con posto auto con terrazza di nuova costruzione con angolo cottura di recente costruzione
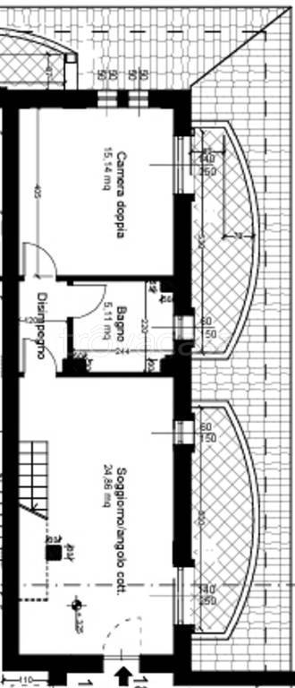
Agliana vendesi Appartamento in costruzione consegna primavera 2023 entrata condominiale piano primo e secondi di mq 60 composto da ingresso soggiorno, angolo cottura camera bagno mansarda di 40 mq con terrazza di 50 mq e posto auto scoperto. L'appartamento ha un recupero fiscale sul prezzo del 12

