Valutazione immobiliare indipendente, accurata e gratuita
L'Opinione di Caasa® per l'appartamento in vendita ad Agliana a 400.000 € (cod.65990ced)
Secondo Caasa, per l'appartamento in vendita ad Agliana, la richiesta di 400.000 € è significativamente svantaggiosa rispetto agli annunci simili.
Analisi immobiliare
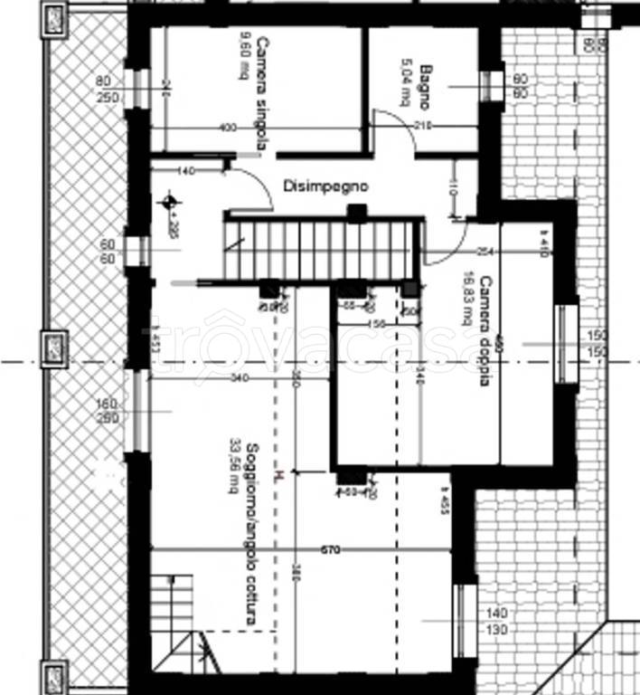
L'appartamento, situato nella zona OMI B1, è proposto in vendita (da AGENZIA IMMOBILIARE ARCA) a
400.000 € per una
superficie commerciale di
95 m² e quindi ad un prezzo per metro quadrato pari a
4210 €/m²
.
Tale prezzo
è meno conveniente di quello stimato da Caasa per immobili in vendita simili per tipologia, caratteristiche, classe energetica e localizzati nella stessa zona OMI, che è compreso tra
3.179 €/m² e
3.401 €/m².
La conoscenza con buona approssimazione della localizzazione dell'immobile ha consentito di utilizzare come raffronto i dati medi elaborati esattamente nella zona OMI di appertenenza (SAN PIERO SAN NICCOLO). Inoltre, Caasa ha potuto affinare la stima anche con la conoscenza della classe energetica (A) oltre che dello stato dell'immobile (di nuova costruzione) e di alcune caratteristiche significative come il garage. Per i motivi esposti i valori accettabili per l'offerta costituiscono un intervallo abbastanza limitato.
Mercato immobiliare ad Agliana
Per quanto riguarda più in generale la città di Agliana, sono presenti al momento più di 200 annunci per
appartamenti in vendita (meno del 5% dell'intera provincia)
e il maggior numero di annunci per questa tipologia sono relativi alla zona di Spedalino.
Relativamente alla dinamica dei prezzi, possiamo dire che negli ultimi 6 mesi i prezzi medi in tutta la città per appartamenti in vendita sono
in leggero aumento (+2,49%).
NOVITÀ Il risultato che vedi dipende dai dati che siamo riusciti ad estrarre dall'annuncio: ottieni una stima più accuranta di questo immobile, inserendo dati più precisi.
N.B. L'Opinione di Caasa® è un servizio sperimentale realizzato tramite tecniche di Intelligenza Artificiale, fornito senza alcuna garanzia di correttezza e completezza. Leggi il disclaimer o segnalaci un problema.
IMMAGINI
IN SINTESI
DESCRIZIONE
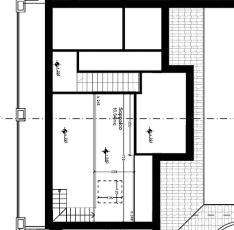
di nuova costruzione con posto auto con giardino con garage con terrazza di nuova costruzione con termocondizionamento
SAN PIERO, AGLIANA, Appartamento indipendente in vendita di 95 Mq, Nuova costruzione, Riscaldamento a pavimento, , posto al piano primo, composto da: 5 Vani, garage di 22 mq giardino di 20 mq soppalco di 20 mq e 20 mq di terrazzo Prezzo: Euro 400.000 con recupero fiscale del 12% sul prezzo

