Valutazione immobiliare indipendente, accurata e gratuita
Casa indipendente a San Miniato in zona San Miniato Basso a 400.000 € (cod.64fe5430)
Caasa non ha sufficienti informazioni per commentare la casa indipendente a San Miniato San Miniato Basso - 64fe5430.
Analisi immobiliare
I dati in posseso di Caasa per quest'immobile sono insufficienti, inaffidabili o contraddittori per proporre un'analisi attendibile.
Mercato immobiliare a San Miniato
Per quanto riguarda più in generale la città di San Miniato, sono presenti al momento oltre 500 annunci per
case indipendenti in vendita (meno del 10% dell'intera provincia)
e il maggior numero di annunci per questa tipologia sono relativi proprio alla zona di San Miniato Basso.
La richiesta media nella zona dove sorge la casa indipendente (San Miniato Basso) è pari a
1.965 €/m², molto vicina ai valori della zona Cigoli che sono i più alti della città .
Per quanto riguarda la dinamica dei prezzi, negli ultimi 6 mesi i prezzi medi in tutta la città per case indipendenti in vendita sono
in aumento (+3,30%).
NOVITÀ Il risultato che vedi dipende dai dati che siamo riusciti ad estrarre dall'annuncio: ottieni una stima più accuranta di questo immobile, inserendo dati più precisi.
N.B. L'Opinione di Caasa® è un servizio sperimentale realizzato tramite tecniche di Intelligenza Artificiale, fornito senza alcuna garanzia di correttezza e completezza. Leggi il disclaimer o segnalaci un problema.
IMMAGINI
IN SINTESI
PROPOSTO DA:
emporium immobiliare
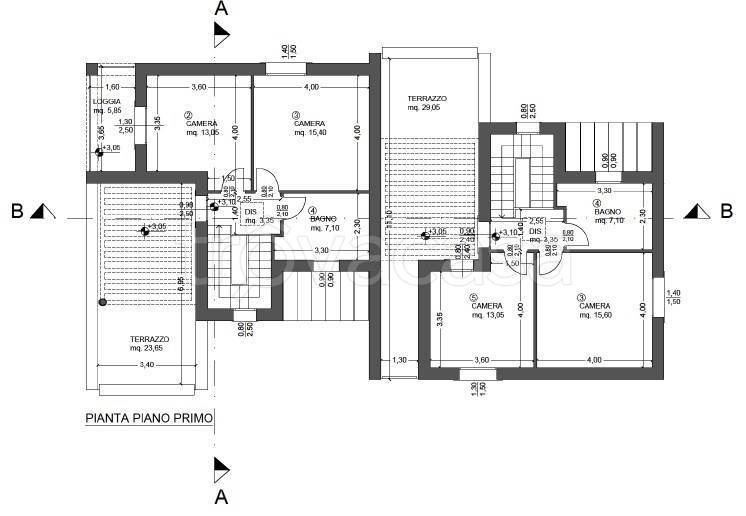
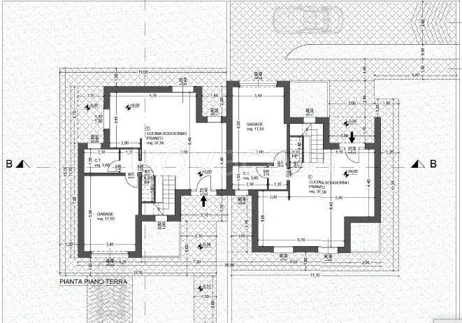
DESCRIZIONE
di nuova costruzione con giardino con posto auto con garage con terrazza con angolo cottura di nuova costruzione
Porzione di villetta bifamiliare a San Miniato - Nuova Costruzione** Rif TE314 Scopri il tuo nuovo rifugio in questa splendida porzione di villetta indipendente, una vera gemma in fase di costruzione con consegna prevista per l'estate del 2026. Dislocata su due livelli, questo immobile offre un ingresso accogliente che conduce a un'ampia zona giorno/pranzo living con angolo cottura, perfetta per momenti di convivialità e relax. Con due camere spaziose e doppi servizi, ogni membro della famiglia avrà il proprio spazio privato. La terrazza è ideale per godersi il sole e organizzare cene all'aperto, mentre il giardino esclusivo di 100 mq offre un'oasi verde dove rilassarsi. Non dimenticare il garage e il posto auto, che rendono la vita quotidiana ancora più comoda. Questo immobile di 120 m² commerciali è completamente personalizzabile nelle finiture, permettendoti di creare la casa dei tuoi sogni. Info in agenzia Emporium immobiliare Empoli

