Valutazione immobiliare indipendente, accurata e gratuita
L'Opinione di Caasa® per l'appartamento a San Giuliano Terme in zona Madonna dell'Acqua a 142.000 € (cod.659795bb)
Secondo Caasa, per l'appartamento in vendita in zona Madonna dell'Acqua, la richiesta di 142.000 € è leggermente svantaggiosa rispetto agli annunci simili.
Analisi immobiliare
L'appartamento, situato nella zona OMI E1, è proposto in vendita (da AGENZIA IMMOBILIARE ITALIA) a
142.000 € per una
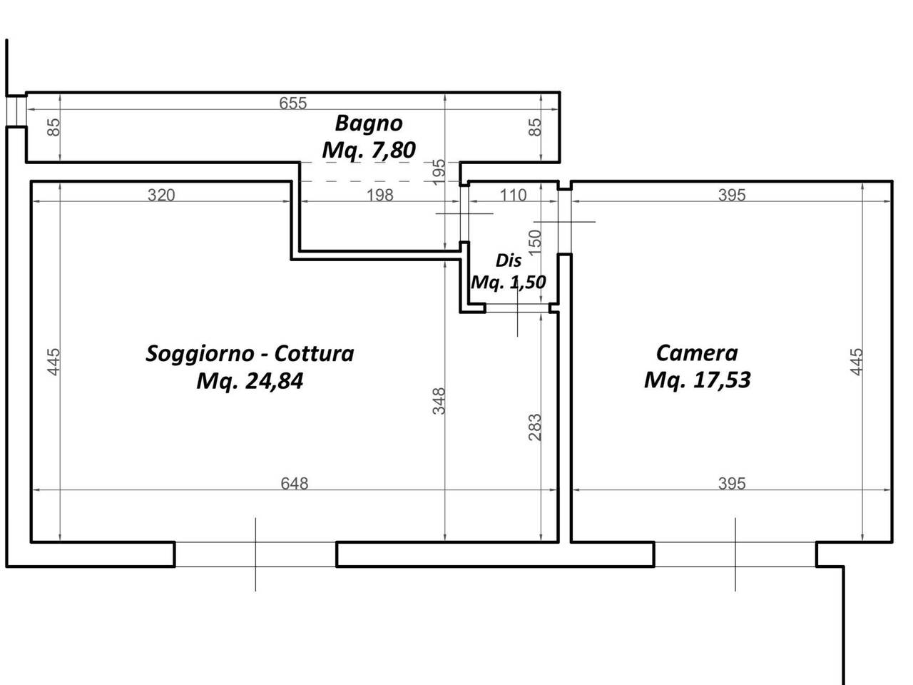
superficie commerciale di
55 m² e quindi ad un prezzo per metro quadrato pari a
2581 €/m²
.
Tale valore
è un po' più alto di quello stimato da Caasa per immobili in vendita simili per tipologia e caratteristiche e localizzati nella stessa zona OMI, che è compreso tra
2.197 €/m² e
2.400 €/m².
Grazie alla conoscenza con buona approssimazione della localizzazione dell'immobile, è stato possibile utilizzare come raffronto i dati medi elaborati esattamente nella zona OMI di appertenenza (ASCIANO - AGNANO - MEZZANA - PONTASSERCHIO - S.MARTINO ULMIANO - COLIGNOLA - ...) per appartamenti (da 1.590 €/m² a 2.610 €/m²) e per case semindipendenti (da 1.715 €/m² a 2.865 €/m²). Anche se Caasa non è riuscita a determinare la classe energetica, ad affinare la stima ha contribuito anche lo stato dell'immobile (di nuova costruzione). Per i motivi esposti i valori accettabili per l'offerta costituiscono un intervallo relativamente limitato.
Mercato immobiliare a San Giuliano Terme
Per quanto riguarda più in generale la città di San Giuliano Terme, sono presenti al momento quasi 500 annunci per
appartamenti in vendita (meno del 5% dell'intera provincia)
e il maggior numero di annunci per questa tipologia sono relativi alla zona di Pontasserchio, mentre la zona di Madonna dell'Acqua risulta molto meno attiva considerando il numero di annunci presenti.
La richiesta media nella zona dove sorge l'appartamento (Madonna dell'Acqua) è pari a
2.130 €/m², non troppo distante dai valori medi cittadini per appartamenti in vendita.
La dinamica dei prezzi in tutta la città mostra che negli ultimi 6 mesi, i prezzi per appartamenti in vendita sono
sostanzialmente stabili (-0,20%).
NOVITÀ Il risultato che vedi dipende dai dati che siamo riusciti ad estrarre dall'annuncio: ottieni una stima più accuranta di questo immobile, inserendo dati più precisi.
N.B. L'Opinione di Caasa® è un servizio sperimentale realizzato tramite tecniche di Intelligenza Artificiale, fornito senza alcuna garanzia di correttezza e completezza. Leggi il disclaimer o segnalaci un problema.
IMMAGINI
IN SINTESI
PROPOSTO DA:
AGENZIA IMMOBILIARE ITALIA
C.SO ITALIA,64, Pisa (PI)
Verificata da Caasa®
DESCRIZIONE
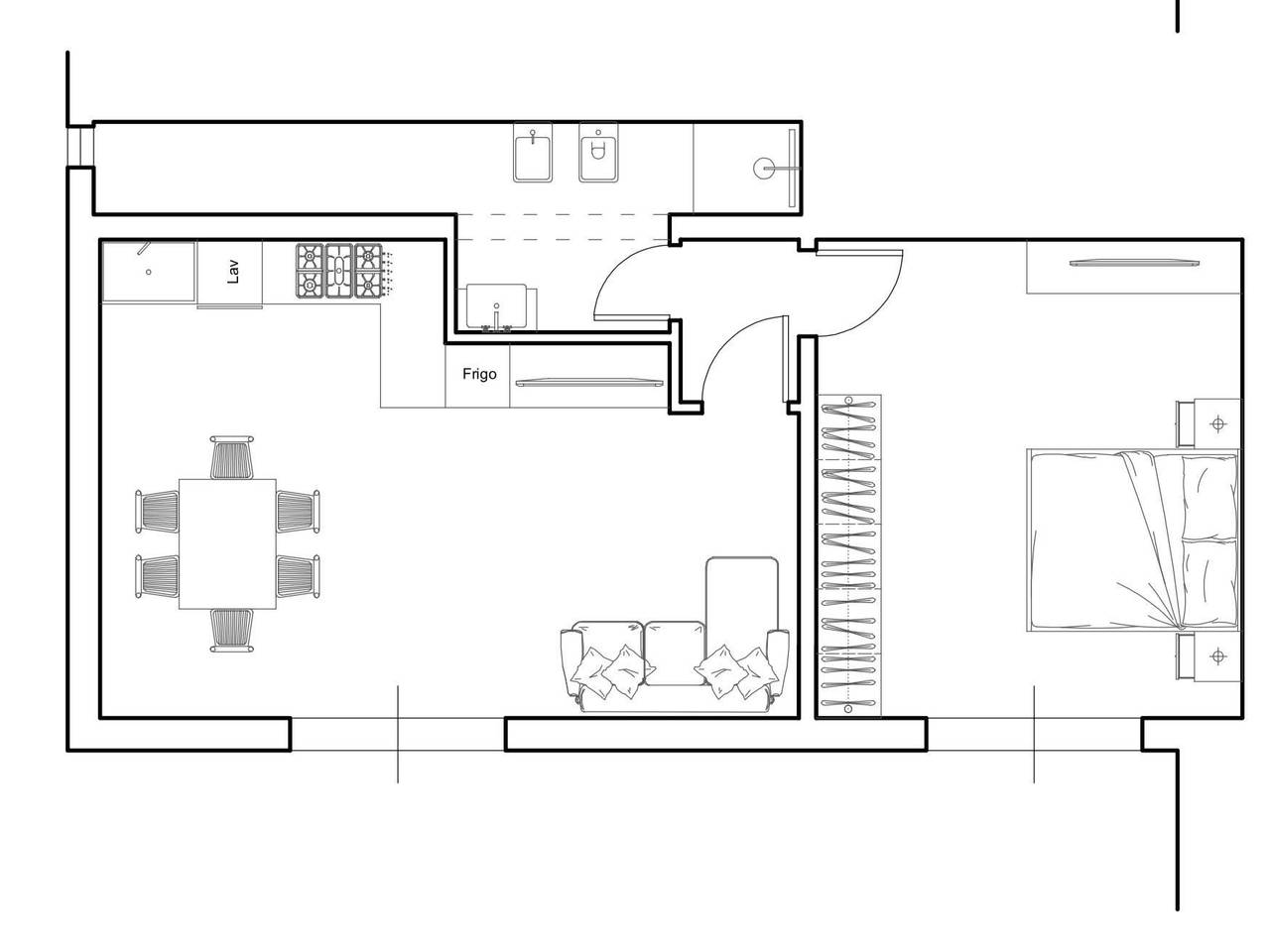
di nuova costruzione di recente ristrutturazione di nuova costruzione con angolo cottura
Madonna dell'acqua : Nostra esclusiva !!! Appartamento nuovo in corso di ristrutturazione !!! Proponiamo nuova soluzione a due passi dal centro di Pisa posizionato in zona strategica residenziale . Si tratta di un ampio appartamento bilocale di circa 55 mq netti che verrà consegnato completamente ristrutturato . Ingresso indipendente , soggiorno con angolo cottura , zona giorno/tv , disimpegno , camera matrimoniale , bagno con doccia e finestra . Ideale per giovane coppia o ad uso investimento , tempi di consegna Dicembre 2026. Per info e visite Andrea 3391878399 Madonna dell'acqua: Our exclusive!!! New apartment under renovation!!! We offer a new solution a stone's throw from the center of Pisa, located in a strategic residential area. This is a spacious two-room apartment of approximately 55 net square meters that will be delivered completely renovated. Independent entrance, living room with kitchenette, living area/TV, hallway, double bedroom, bathroom with shower and window. Ideal for a young couple or for investment use, delivery time December 2026. For information and viewings Andrea 3391878399








