Valutazione immobiliare indipendente, accurata e gratuita
L'Opinione di Caasa® per l'appartamento a San Giuliano Terme in zona Madonna dell'Acqua a 142.000 € (cod.656dc2b9)
Secondo Caasa, per l'appartamento in vendita in zona Madonna dell'Acqua, la richiesta di 142.000 € è leggermente svantaggiosa rispetto agli annunci simili.
Analisi immobiliare
L'appartamento, situato nella zona OMI E1, è proposto in vendita (da LA CASA PER TE) a
142.000 € per una
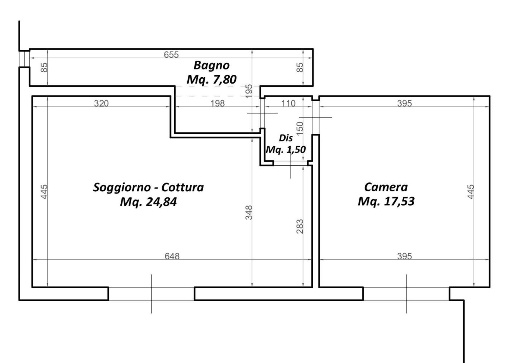
superficie commerciale di
55 m² e quindi ad un prezzo per metro quadrato pari a
2581 €/m²
.
Tale prezzo
è leggermente meno conveniente di quello stimato da Caasa per immobili in vendita simili per tipologia e caratteristiche e localizzati nella stessa zona OMI, che è compreso tra
2.242 €/m² e
2.437 €/m².
Grazie alla conoscenza con buona approssimazione della localizzazione dell'immobile, è stato possibile utilizzare come raffronto i dati medi elaborati esattamente nella zona OMI di appertenenza (ASCIANO - AGNANO - MEZZANA - PONTASSERCHIO - S.MARTINO ULMIANO - COLIGNOLA - ...) per appartamenti (da 1.565 €/m² a 2.175 €/m²) e per case semindipendenti (da 1.585 €/m² a 2.765 €/m²). Anche se Caasa non è riuscita a determinare la classe energetica, ad affinare la stima ha contribuito anche lo stato dell'immobile (di recente ristrutturazione). Per queste considerazioni i valori accettabili per l'offerta costituiscono un intervallo relativamente limitato.
Mercato immobiliare a San Giuliano Terme
Per quanto riguarda più in generale la città di San Giuliano Terme, sono presenti al momento oltre 500 annunci per
appartamenti in vendita (meno del 5% dell'intera provincia)
e il maggior numero di annunci per questa tipologia sono relativi alla zona di Pontasserchio, mentre la zona di Madonna dell'Acqua risulta molto meno attiva considerando il numero di annunci presenti.
La richiesta media nella zona dove sorge l'appartamento (Madonna dell'Acqua) è pari a
1.880 €/m², di poco superiore al valore della zona Molina di Quosa che è la più economica della città .
Relativamente alla dinamica dei prezzi, possiamo dire che negli ultimi 6 mesi i prezzi medi in tutta la città per appartamenti in vendita sono
sostanzialmente stabili (-0,33%).
NOVITÀ Il risultato che vedi dipende dai dati che siamo riusciti ad estrarre dall'annuncio: ottieni una stima più accuranta di questo immobile, inserendo dati più precisi.
N.B. L'Opinione di Caasa® è un servizio sperimentale realizzato tramite tecniche di Intelligenza Artificiale, fornito senza alcuna garanzia di correttezza e completezza. Leggi il disclaimer o segnalaci un problema.
IMMAGINI
IN SINTESI
DESCRIZIONE
di recente ristrutturazione di recente ristrutturazione da ristrutturare con angolo cottura
Madonna dell'acqua : Nostra esclusiva !!! Appartamento nuovo in corso di ristrutturazione !!! Proponiamo nuova soluzione a due passi dal centro di Pisa posizionato in zona strategica residenziale . Si tratta di un ampio Appartamento bilocale di circa 55 mq netti che verrà consegnato completamente ristrutturato . Ingresso indipendente , soggiorno con angolo cottura , zona giorno/tv , disimpegno , camera matrimoniale , bagno con doccia e finestra. Facilità di parcheggio nelle vicinanze. Ideale per giovane coppia o ad uso investimento , tempi di consegna Dicembre 2026. Per info e visite contattare l'agenzia

