Valutazione immobiliare indipendente, accurata e gratuita
Casa indipendente a San Giuliano Terme in zona Pontasserchio a 277.000 € (cod.654a9dd0)
Caasa non ha sufficienti informazioni per commentare la casa indipendente in vendita in zona Pontasserchio - 654a9dd0.
Analisi immobiliare
I dati in posseso di Caasa per quest'immobile sono insufficienti, inaffidabili o contraddittori per proporre un'analisi attendibile.
Mercato immobiliare a San Giuliano Terme
Per quanto riguarda più in generale la città di San Giuliano Terme, sono presenti al momento circa mille annunci per
case indipendenti in vendita (meno del 10% dell'intera provincia)
e il maggior numero di annunci per questa tipologia sono relativi alla zona di Arena-Metato, ma anche la zona di Pontasserchio è molto attiva dal punto di vista immobiliare.
La richiesta media nella zona dove sorge la casa indipendente (Pontasserchio) è pari a
1.965 €/m², di poco superiore al valore della zona Pugnano che è la più economica della città .
Per quanto riguarda la dinamica dei prezzi, negli ultimi 6 mesi i prezzi medi in tutta la città per case indipendenti in vendita sono
sostanzialmente stabili (+0,28%).
NOVITÀ Il risultato che vedi dipende dai dati che siamo riusciti ad estrarre dall'annuncio: ottieni una stima più accuranta di questo immobile, inserendo dati più precisi.
N.B. L'Opinione di Caasa® è un servizio sperimentale realizzato tramite tecniche di Intelligenza Artificiale, fornito senza alcuna garanzia di correttezza e completezza. Leggi il disclaimer o segnalaci un problema.
IMMAGINI
IN SINTESI
DESCRIZIONE
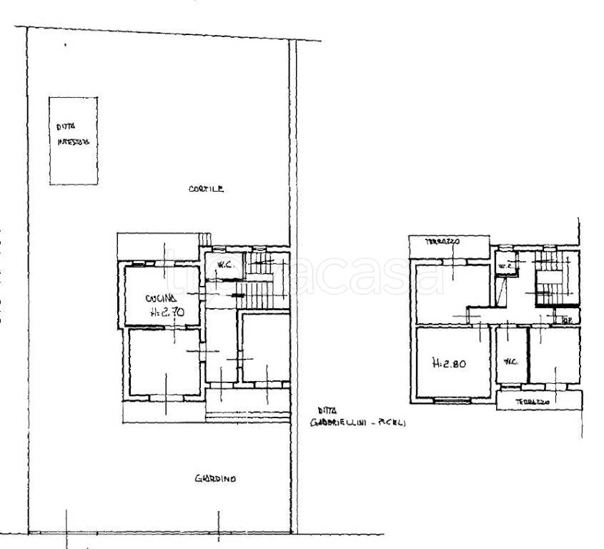
da ristrutturare con giardino con posto auto con cantina con garage con cucina abitabile con balcone con terrazza da ristrutturare
Pontasserchio – zona residenziale tranquilla e ben servita In contesto residenziale silenzioso, a pochi passi dalla scuola elementare e da un parco pubblico, proponiamo villetta bifamiliare libera su tre lati, ideale per famiglie. L’immobile, costruito nel 1985, si sviluppa su due livelli per una superficie complessiva di circa 120 mq ed è circondato da un giardino esclusivo di circa 300 mq disposto su tre lati, perfetto per momenti di relax all’aperto. Al piano terra l’ingresso a corridoio conduce alla zona giorno, composta da sala leggermente separata dalla cucina abitabile. Sempre sullo stesso livello troviamo una camera di 14 mq, ideale anche come studio o stanza per ospiti, e un bagno con doccia e finestra. Una scala interna conduce al piano primo, dove si sviluppa la zona notte composta da tre camere da letto: una matrimoniale, una camera media e una singola, entrambe con balcone. Completano il piano due bagni, entrambi finestrati, uno con vasca, oltre a un comodo ripostiglio. Completa la proprietà un garage di 14 mq, comodo sia come autorimessa che come spazio accessorio. Soluzione ideale per chi cerca indipendenza, ampi spazi interni ed esterni e tranquillità, mantenendo la comodità dei servizi a pochi passi

