Valutazione immobiliare indipendente, accurata e gratuita
Casa indipendente in vendita a San Giuliano Terme in zona Agnano a 700.000 € (cod.652bab74)
Caasa non ha sufficienti informazioni per commentare la casa indipendente a San Giuliano Terme Agnano - 652bab74.
Analisi immobiliare
I dati in posseso di Caasa per quest'immobile sono insufficienti, inaffidabili o contraddittori per proporre un'analisi attendibile.
Mercato immobiliare a San Giuliano Terme
Per quanto riguarda più in generale la città di San Giuliano Terme, sono presenti al momento circa mille annunci per
case indipendenti in vendita (meno del 10% dell'intera provincia)
e il maggior numero di annunci per questa tipologia sono relativi alla zona di Arena-Metato, mentre la zona di Agnano risulta molto meno attiva considerando il numero di annunci presenti.
La richiesta media nella zona dove sorge la casa indipendente (Agnano) è pari a
2.095 €/m², di poco superiore al valore della zona San Martino a Ulmiano che è la più economica della città .
Per quanto riguarda la dinamica dei prezzi, negli ultimi 6 mesi i prezzi medi in tutta la città per case indipendenti in vendita sono
in aumento (+4,37%).
NOVITÀ Il risultato che vedi dipende dai dati che siamo riusciti ad estrarre dall'annuncio: ottieni una stima più accuranta di questo immobile, inserendo dati più precisi.
N.B. L'Opinione di Caasa® è un servizio sperimentale realizzato tramite tecniche di Intelligenza Artificiale, fornito senza alcuna garanzia di correttezza e completezza. Leggi il disclaimer o segnalaci un problema.
IMMAGINI
IN SINTESI
PROPOSTO DA:
CENTRO CASA Immobiliare di Bertolini
Via Curtatone e Montanara, 20/22, Pisa (PI)
Verificata da Caasa®
DESCRIZIONE
di recente ristrutturazione con giardino con cucina abitabile con balcone di recente ristrutturazione con terrazza con caminetto
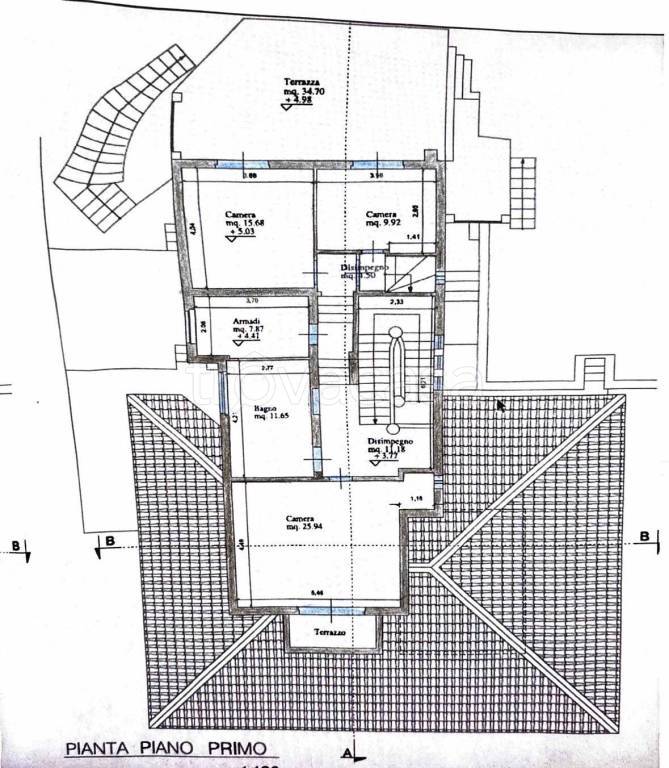
ASCIANO - COMUNE DI SAN GIULIANO TERME: (Riferimento agenzia n°: 219) Proponiamo in vendita una splendida villa unifamiliare di complessivi 430 mq in posizione riservata e tranquilla oltre che ben soleggiata, libera su 4 lati, con bellissimo giardino di oltre 1.000 mq. la villa dispone di loggiati coperti che la circondano ideali sia come zona pranzo che come area living per la bella stagione. Internamente è composta al piano terra da una grande cucina abitabile con bellissimi pavimenti in marmo con locale dispensa da un importante e grande soggiorno suddiviso in tre zone caratteristiche con pavimenti in parquet di teak a mosaico posizionate su livelli leggermente sfalzati e dotate di ampie finestrature e di un bellissimo camino nella zona centrale della stanza, oltre ad un bagno finestrato con finiture in marmo a mosaico. Salendo le ampie scale si giunge al primo piano dove troviamo 4 camere da letto (2 matrimoniali di cui una padronale dotata di balcone, 1 singola ed 1 studio), un grande bagno di circa 12 mq con vasca idromassaggio e rivestimenti in marmo giallo. Infine una caratteristica ed ampia mansarda dotata di bagno finestrato e altri due vani adiacenti di cui uno dotato di sauna. La villa è stata ristrutturata di recente ed è dotata di impianto di allarme sia interno all'abitazione che esterno nel giardino, impianto di videosorveglianza e impianto di climatizzazione. Date le dimenzioni l'immobile si presta anche a due nuclei familiari. Prezzo: 700.000 € (Riferimento agenzia n°: 219) Ricordiamo ai gentili clienti che gli indirizzi riportati sugli annunci dei vari portali sono da ritenersi indicativi inoltre tutte le informazioni e i tutti i contenuti (caratteristiche, metrature, vani, ecc. ) negli annunci sono puramente indicativi, quindi potrebbero contenere imprecisioni o errori, pertanto non comportano nessun vincolo contrattuale. Per info e appuntamenti chiamare agenzia CENTRO CASA IMMOBILIARE al numero 050/579866 oppure 340/5826386 oppure 348/3962620 oppure 393/0173833. In oltre vi invitiamo […]

