Valutazione immobiliare indipendente, accurata e gratuita
Appartamento in vendita a San Giuliano Terme a 105.000 € (cod.6521b977)
Caasa non ha sufficienti informazioni per commentare l'appartamento in vendita a San Giuliano Terme - 6521b977.
Analisi immobiliare
I dati in posseso di Caasa per quest'immobile sono insufficienti, inaffidabili o contraddittori per proporre un'analisi attendibile.
Mercato immobiliare a San Giuliano Terme
Per quanto riguarda più in generale la città di San Giuliano Terme, sono presenti al momento quasi 500 annunci per
appartamenti in vendita (meno del 5% dell'intera provincia)
e il maggior numero di annunci per questa tipologia sono relativi alla zona di Pontasserchio.
La dinamica dei prezzi in tutta la città mostra che negli ultimi 6 mesi, i prezzi per appartamenti in vendita sono
in debole aumento (+1,57%).
NOVITÀ Il risultato che vedi dipende dai dati che siamo riusciti ad estrarre dall'annuncio: ottieni una stima più accuranta di questo immobile, inserendo dati più precisi.
N.B. L'Opinione di Caasa® è un servizio sperimentale realizzato tramite tecniche di Intelligenza Artificiale, fornito senza alcuna garanzia di correttezza e completezza. Leggi il disclaimer o segnalaci un problema.
IMMAGINI
IN SINTESI
PROPOSTO DA:
Agenzia Immobiliare TESTI di Testi Stefano
DESCRIZIONE
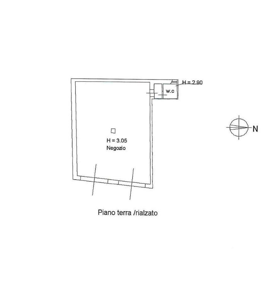
Cod.01255 Rif.Ag. 863 - (Riferimento Agenzia 863) Nel Comune di San Giuliano Terme a circa 4 Km dalle Terme, proponiamo in VENDITA unico vano di circa 90 mq con antibagno e bagno, due aperture fronte strada, libero su tre lati, attualmente adibito ad attività commerciale, ma con possibilità di TRASFORMARE IN ABITAZIONE. In particolare, possibilità di aprire una finestra e creare comodamente un trilocale con bagno. Richiesta € 105.000 trattabili. ATTENZIONE!!!!! SI SPECIFICA CHE GLI INDIRIZZI DEGLI ANNUNCI SONO PURAMENTE INDICATIVI E VOGLIONO SOLO ESSERE UN UTILE AUSILIO NELL'INDIVIDUAZIONE DELLA ZONA DOVE E' UBICATO L'IMMOBILE PUR RISPETTANDO LA PRIVACY E LA RISERVATEZZA DEI VENDITORI









