Valutazione immobiliare indipendente, accurata e gratuita
Locale di sgombero in vendita a San Giuliano Terme a 129.000 € (cod.650bbb15)
Caasa non ha sufficienti informazioni per commentare il locale di sgombero in vendita a San Giuliano Terme - 650bbb15.
Analisi immobiliare
I dati in posseso di Caasa per quest'immobile sono insufficienti, inaffidabili o contraddittori per proporre un'analisi attendibile.
Mercato immobiliare a San Giuliano Terme
Per quanto riguarda più in generale la città di San Giuliano Terme, sono presenti al momento più di cento annunci per
locali di sgombero in vendita (meno del 10% dell'intera provincia)
e il maggior numero di annunci per questa tipologia sono relativi alla zona di Molina di Quosa.
Vedi altre informazioni direttamente su
Mercato-Immobiliare.info
NOVITÀ Il risultato che vedi dipende dai dati che siamo riusciti ad estrarre dall'annuncio: ottieni una stima più accuranta di questo immobile, inserendo dati più precisi.
N.B. L'Opinione di Caasa® è un servizio sperimentale realizzato tramite tecniche di Intelligenza Artificiale, fornito senza alcuna garanzia di correttezza e completezza. Leggi il disclaimer o segnalaci un problema.
IMMAGINI
IN SINTESI
DESCRIZIONE
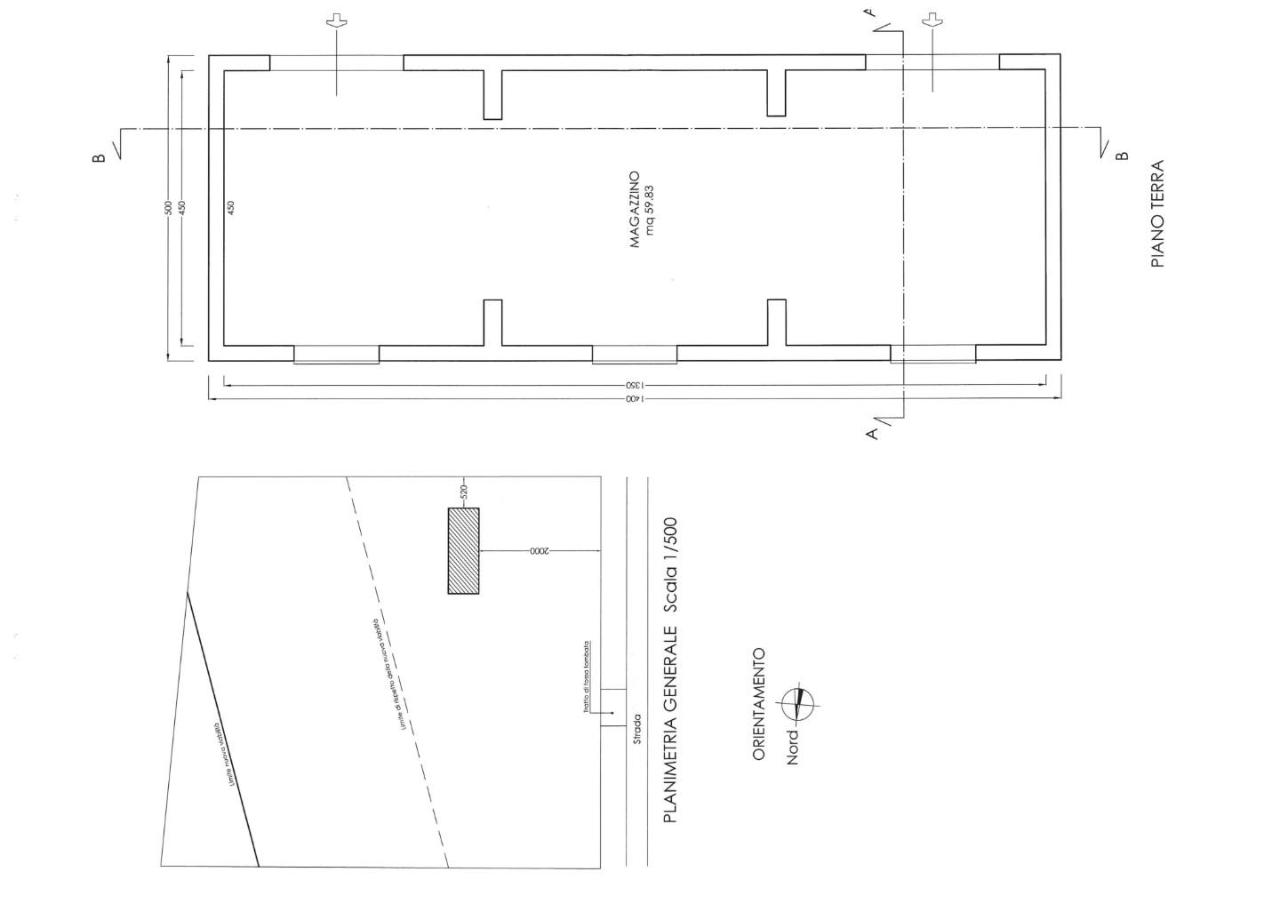
Cod.01022 Rif.Ag. S3026 - San Giuliano Terme Terreno agricolo in vendita - Rif. S3026 Proponiamo in vendita terreno agricolo situato nella zona più verde di San Giuliano! Attualmente sul terreno è possibile la realizzazione di un locale uso magazzino categoria C/2 di circa 70mq , ideale per coltivazioni, orti o per creare uno spazio all’aperto personalizzato. Il terreno è accessibile dalla strada. Per tutte le informazioni, non esitate a contattarci






