Valutazione immobiliare indipendente, accurata e gratuita
Appartamento in vendita a Santa Croce sull'Arno a 90.000 € (cod.65728224)
Caasa non ha sufficienti informazioni per commentare l'appartamento in vendita a Santa Croce sull'Arno - 65728224.
Analisi immobiliare
I dati in posseso di Caasa per quest'immobile sono insufficienti, inaffidabili o contraddittori per proporre un'analisi attendibile.
Mercato immobiliare a Santa Croce sull'Arno
Per quanto riguarda più in generale il comune di Santa Croce sull'Arno, sono presenti al momento quasi 500 annunci per
appartamenti in vendita (meno del 5% dell'intera provincia)
e il maggior numero di annunci per questa tipologia sono relativi alla zona di Staffoli.
Per quanto riguarda la dinamica dei prezzi, negli ultimi 6 mesi i prezzi medi in tutto il comune per appartamenti in vendita sono
sostanzialmente stabili (+0,82%).
NOVITÀ Il risultato che vedi dipende dai dati che siamo riusciti ad estrarre dall'annuncio: ottieni una stima più accuranta di questo immobile, inserendo dati più precisi.
N.B. L'Opinione di Caasa® è un servizio sperimentale realizzato tramite tecniche di Intelligenza Artificiale, fornito senza alcuna garanzia di correttezza e completezza. Leggi il disclaimer o segnalaci un problema.
IMMAGINI
IN SINTESI
DESCRIZIONE
con posto auto con terrazza con garage con cantina con ascensore
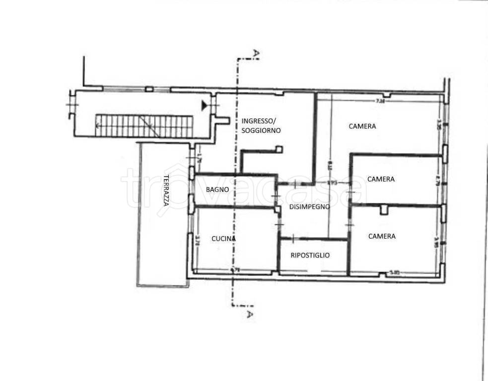
Santa Croce sull'Arno, appartamento di mq. 140, posto al piano primo con ascensore, oltre corte interna esclusiva di mq. 40. Completa la proprietà un ampio garage a piano terreno e un'altra piccola stanza ad uso ripostiglio di circa mq. 6 con accesso interno al vano scale. Termosingolo a metano oltre condizionatori a pompa di calore. Rif. 46798. Per informazioni e visite Tel. 055.8316480

