Valutazione immobiliare indipendente, accurata e gratuita
Casa indipendente in vendita a Pontedera in zona La Borra a 469.000 € (cod.6577feef)
Caasa non ha sufficienti informazioni per commentare la casa indipendente a Pontedera in zona La Borra - 6577feef.
Analisi immobiliare
I dati in posseso di Caasa per quest'immobile sono insufficienti, inaffidabili o contraddittori per proporre un'analisi attendibile.
Mercato immobiliare a Pontedera
Per quanto riguarda più in generale la città di Pontedera, sono presenti al momento oltre 500 annunci per
case indipendenti in vendita (meno del 5% dell'intera provincia)
e il maggior numero di annunci per questa tipologia sono relativi alla zona di Santa Lucia, mentre la zona di La Borra risulta molto meno attiva considerando il numero di annunci presenti.
La richiesta media nella zona dove sorge la casa indipendente (La Borra) è pari a
2.475 €/m², molto vicina ai valori della zona Santa Lucia che sono i più alti della città .
La dinamica dei prezzi in tutta la città mostra che negli ultimi 6 mesi, i prezzi per case indipendenti in vendita sono
in debole aumento (+2,15%).
NOVITÀ Il risultato che vedi dipende dai dati che siamo riusciti ad estrarre dall'annuncio: ottieni una stima più accuranta di questo immobile, inserendo dati più precisi.
N.B. L'Opinione di Caasa® è un servizio sperimentale realizzato tramite tecniche di Intelligenza Artificiale, fornito senza alcuna garanzia di correttezza e completezza. Leggi il disclaimer o segnalaci un problema.
IMMAGINI
IN SINTESI
DESCRIZIONE
di recente costruzione con posto auto con cantina con garage con giardino con cucina abitabile di nuova costruzione con balcone di recente costruzione senza ascensore
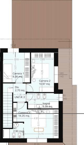
La Borra - Pontedera Villetta bifamiliare in vendita - 6 vani - 125 mq - con ingresso indipendente - posto al piano Piano terra composto da 3 camere e 3 bagni e garage- In costruzione villetta in bifamiliare, realizzata in costruita con tutti i materiali di ultima generazione e con spazi molto comodi. La villetta al Piano terra è composta da ingresso, ampio soggiorno di 40 mq, cucina abitabile con accesso al giardino esterno ideale per essere vissuto nella bella stagione, anti-bagno e bagno, ripostiglio, locale tecnico/lavanderia e GARAGE La zona notte posta al piano primo è composta da camera matrimoniale con bagno privato , una camera doppia, una camera singola ed un ulteriore bagno. Immobile completamente personalizzabile. Rifiniture di alto livello - Rif. RC6086








