Valutazione immobiliare indipendente, accurata e gratuita
Appartamento in vendita a Pontedera in zona La Borra a 355.000 € (cod.6572e600)
Caasa non ha sufficienti informazioni per commentare l'appartamento a Pontedera in zona La Borra - 6572e600.
Analisi immobiliare
I dati in posseso di Caasa per quest'immobile sono insufficienti, inaffidabili o contraddittori per proporre un'analisi attendibile.
Mercato immobiliare a Pontedera
Per quanto riguarda più in generale la città di Pontedera, sono presenti al momento circa mille annunci per
appartamenti in vendita (meno del 10% dell'intera provincia)
e il maggior numero di annunci per questa tipologia sono relativi alla zona di Santa Lucia, mentre nella zona di La Borra è presente un numero significativamente inferiore di annunci.
La richiesta media nella zona dove sorge l'appartamento (La Borra) è pari a
2.550 €/m², molto vicina ai valori della zona Santa Lucia che sono i più alti della città .
Per quanto riguarda la dinamica dei prezzi, negli ultimi 6 mesi i prezzi medi in tutta la città per appartamenti in vendita sono
in leggero aumento (+3,07%).
NOVITÀ Il risultato che vedi dipende dai dati che siamo riusciti ad estrarre dall'annuncio: ottieni una stima più accuranta di questo immobile, inserendo dati più precisi.
N.B. L'Opinione di Caasa® è un servizio sperimentale realizzato tramite tecniche di Intelligenza Artificiale, fornito senza alcuna garanzia di correttezza e completezza. Leggi il disclaimer o segnalaci un problema.
IMMAGINI
IN SINTESI
DESCRIZIONE
di nuova costruzione con posto auto con terrazza con garage con cantina con termocondizionamento di nuova costruzione
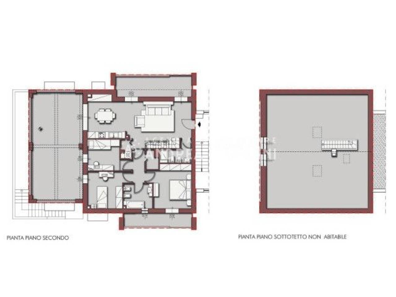
La Borra - Pontedera- Vendesi Attico posto al secondo ed ultimo piano di un condomio di nuova costruzione. L'immobile libero su tre lati si compone in: ingresso in ampia zona giorno in open space con doppio terrazzo, bagno di servizio; disimpegno, camera matrimoniale con ulteriore terrazzo, 2 camerette, bagno e ripostiglio. Salendo ulteriormente al piano sottotetto troviamo un' ampia mansarda abitabile da adibire ad ulteriore zona living o quarta camera. Completano la proprietà la fantastica terrazza abitabile di mq 45 e il garage esclusivo di mq 15. DOTAZIONI: cappotto termico, Impianto di riscaldamento a pavimento centralizzato a gestione autonoma con impianto solare termico e impianto di addolcitore, predisposizione allarme e condizionatore. - Rif. 1693-AL

