Valutazione immobiliare indipendente, accurata e gratuita
Casa indipendente in vendita a Pontedera in zona La Bianca a 570.000 € (cod.64fe80bf)
Caasa non ha sufficienti informazioni per commentare la casa indipendente a Pontedera in zona La Bianca - 64fe80bf.
Analisi immobiliare
I dati in posseso di Caasa per quest'immobile sono insufficienti, inaffidabili o contraddittori per proporre un'analisi attendibile.
Mercato immobiliare a Pontedera
Per quanto riguarda più in generale la città di Pontedera, sono presenti al momento oltre 500 annunci per
case indipendenti in vendita (meno del 5% dell'intera provincia)
e il maggior numero di annunci per questa tipologia sono relativi alla zona di Santa Lucia, mentre la zona di La Bianca risulta molto meno attiva considerando il numero di annunci presenti.
La richiesta media nella zona dove sorge la casa indipendente (La Bianca pressi via della Bianca) è pari a
2.060 €/m², molto vicina ai valori della zona Santa Lucia che sono i più alti della città .
La dinamica dei prezzi in tutta la città mostra che negli ultimi 6 mesi, i prezzi per case indipendenti in vendita sono
in aumento (+4,27%).
NOVITÀ Il risultato che vedi dipende dai dati che siamo riusciti ad estrarre dall'annuncio: ottieni una stima più accuranta di questo immobile, inserendo dati più precisi.
N.B. L'Opinione di Caasa® è un servizio sperimentale realizzato tramite tecniche di Intelligenza Artificiale, fornito senza alcuna garanzia di correttezza e completezza. Leggi il disclaimer o segnalaci un problema.
IMMAGINI
IN SINTESI
DESCRIZIONE
con posto auto con terrazza con garage con giardino con balcone con cucina abitabile con termocondizionamento con cortile
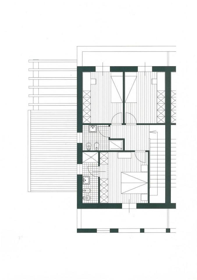
Cod.11124 Rif.Ag. 833-F - PONTEDERA- Via Della Bianca, prossima costruzione di ville bifamiliari con giardino privato e garage. La villa si compone al piano terra da loggiato con ingresso in ampio soggiorno, grande cucina abitabile, bagno, garage oltre patio per cene all'aperto; al piano superiore 3 camere, due bagni oltre loggiato e balcone. Elevata qualità di costruzione e finiture con impianto fotovoltaico, riscaldamento a pavimento solare, predisposizione impianto allarme, clima e addolcitore, ecc. Possibilità di personalizzare gli spazi interni. - Rif. 833-F

