Valutazione immobiliare indipendente, accurata e gratuita

L'Opinione di Caasa® per la casa indipendente in vendita a Pisa in zona Le Piagge a 399.000 € (cod.64ea47b1)

Secondo Caasa, per la casa indipendente a Pisa in zona Le Piagge, la richiesta di 399.000 € è significativamente vantaggiosa rispetto agli annunci simili.

Analisi immobiliare
La casa indipendente, situata nella zona OMI D3, è proposta in vendita a 399.000 € per una superficie commerciale di 155 m² e quindi ad un prezzo per metro quadrato pari a 2574 €/m² .
Tale prezzo è più conveniente di quello stimato da Caasa per immobili in vendita simili per tipologia e caratteristiche e localizzati nella stessa zona OMI, che è compreso tra 2.894 €/m² e 3.101 €/m². Grazie alla conoscenza con buona approssimazione della localizzazione dell'immobile, è stato possibile utilizzare come raffronto i dati medi elaborati esattamente nella zona OMI di appertenenza (ZONE: CISANELLO, PISANOVA, S. CATALDO) per case indipendenti (da 1.960 €/m² a 3.580 €/m²) e per case semindipendenti (da 2.015 €/m² a 3.665 €/m²). Anche se Caasa non è riuscita a determinare la classe energetica, ad affinare la stima hanno contribuito anche lo stato dell'immobile (di recente costruzione) e la presenza di alcune caratteristiche significative come il garage o la disponibilità di una cantina. Per queste ragioni i valori accettabili per l'offerta costituiscono un intervallo relativamente limitato.

Mercato immobiliare a Pisa
Per quanto riguarda più in generale la città di Pisa, sono presenti al momento ben oltre 3.000 annunci per case indipendenti in vendita (meno di un terzo dell'intera provincia) e il maggior numero di annunci per questa tipologia sono relativi alla zona di Centro Storico, mentre la zona di Le Piagge risulta molto meno attiva considerando il numero di annunci presenti.
La richiesta media nella zona dove sorge la casa indipendente (Le Piagge) è pari a 2.715 €/m², molto vicina ai valori della zona Marina di Pisa che sono i più alti della città .
Relativamente alla dinamica dei prezzi, possiamo dire che negli ultimi 6 mesi i prezzi medi in tutta la città per case indipendenti in vendita sono in forte calo (-21,36%).

NOVITÀ Il risultato che vedi dipende dai dati che siamo riusciti ad estrarre dall'annuncio: ottieni una stima più accuranta di questo immobile, inserendo dati più precisi.

N.B. L'Opinione di Caasa® è un servizio sperimentale realizzato tramite tecniche di Intelligenza Artificiale, fornito senza alcuna garanzia di correttezza e completezza. Leggi il disclaimer o segnalaci un problema.

IMMAGINI

IN SINTESI

Prezzo:
399.000 €
Superficie:
155 m²
Prezzo al m²:
2574 €/m²
Piano:
terra
Bagni:
3
Classe energetica:
n.d.
Città:
Pisa (PI)
Zona OMI:
D3 (ZONE: CISANELLO, PISANOVA, S. CATALDO)
Indirizzo:
Pubblicato:
gio 25 settembre 2025

PROPOSTO DA:

CASA UBI MAIOR S.r.l.

DESCRIZIONE

di recente costruzione di recente costruzione con posto auto con cantina con terrazza con garage con termocondizionamento di nuova costruzione

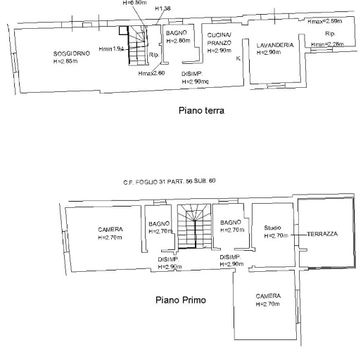
RIFERIMENTO 2509FCGA PISA- Zona Piagge - Terra tetto di recente costruzione composto da ingresso soggiorno, sala da pranzo, cucina, ripostiglio, lavanderia stireria, bagno il tutto al piano terra, al piano primo tre camere di cui una con bagno privato , secondo bagno del piano, terrazza , casa ad alto efficentamento energetico con pompe calore per il raffreddamento ed il riscaldamento con pannelli fotovoltaici, completa la proprietà un ampio garage al piano seminterrato oltre ad una cantinetta. Classe Energetica: A3

  • immobiliare.it
  • yescasa.it
  • cambiocasa.it
  • idealista.it
  • risorseimmobiliari.it
  • trovacasa.net