Valutazione immobiliare indipendente, accurata e gratuita

Casa indipendente in vendita a Castelfranco di Sotto a 238.000 € (cod.64eb9e76)

Caasa non ha sufficienti informazioni per commentare la casa indipendente a Castelfranco di Sotto - 64eb9e76.

Analisi immobiliare
I dati in posseso di Caasa per quest'immobile sono insufficienti, inaffidabili o contraddittori per proporre un'analisi attendibile.
Mercato immobiliare a Castelfranco di Sotto
Per quanto riguarda più in generale il comune di Castelfranco di Sotto, sono presenti al momento quasi 500 annunci per case indipendenti in vendita (meno del 5% dell'intera provincia) e il maggior numero di annunci per questa tipologia sono relativi alla zona di Orentano.

Possiamo inoltre considerare che in tutto il comune negli ultimi 6 mesi, i prezzi per case indipendenti in vendita sono sostanzialmente stabili (-0,16%).

NOVITÀ Il risultato che vedi dipende dai dati che siamo riusciti ad estrarre dall'annuncio: ottieni una stima più accuranta di questo immobile, inserendo dati più precisi.

N.B. L'Opinione di Caasa® è un servizio sperimentale realizzato tramite tecniche di Intelligenza Artificiale, fornito senza alcuna garanzia di correttezza e completezza. Leggi il disclaimer o segnalaci un problema.

IMMAGINI

IN SINTESI

Prezzo:
238.000 €
Superficie:
230 m²
Prezzo al m²:
1034 €/m²
Piano:
n.d.
Bagni:
2
Classe energetica:
n.d.
Città:
Castelfranco di Sotto (PI)
Zona OMI:
D1 (ZONA INDUSTRIALE E ARTIGIANALE)
Indirizzo:
Pubblicato:
lun 16 giugno 2025

PROPOSTO DA:

PIANETA CASA DI NAZZI GABRIELE

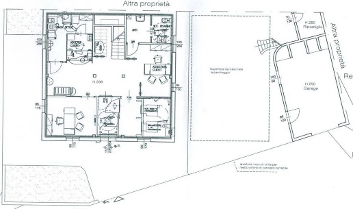
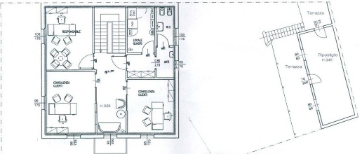
DESCRIZIONE

con giardino con posto auto con garage con terrazza

CASTEL FRANCO DI SOTTO, in zona di grande visibilità proponiamo in vendita Villino Liberty di Mq 230 si sviluppa su due piani oltre soffitta praticabile accessibile da scale retrattile e giardino con passo carrabile, resede esterno (garage mq 35 + 1 vano sovrastante con terrazzo per di ulteriori mq 35) . USO COMMERCIALE, possibilità di cambio di destinazione. Prezzo trattabile. Classe Energetica: G

  • yescasa.it
  • idealista.it