Valutazione immobiliare indipendente, accurata e gratuita
Casa indipendente in vendita a Cascina in zona Visignano a 445.000 € (cod.65782173)
Caasa non ha sufficienti informazioni per commentare la casa indipendente a Cascina in zona Visignano - 65782173.
Analisi immobiliare
I dati in posseso di Caasa per quest'immobile sono insufficienti, inaffidabili o contraddittori per proporre un'analisi attendibile.
Mercato immobiliare a Cascina
Per quanto riguarda più in generale la città di Cascina, sono presenti al momento circa mille annunci per
case indipendenti in vendita (meno del 10% dell'intera provincia)
e il maggior numero di annunci per questa tipologia sono relativi alla zona di Navacchio, mentre la zona di Visignano risulta molto meno attiva considerando il numero di annunci presenti.
La richiesta media nella zona dove sorge la casa indipendente (Visignano) è pari a
2.395 €/m², molto vicina ai valori della zona Titignano che sono i più alti della città .
La dinamica dei prezzi in tutta la città mostra che negli ultimi 6 mesi, i prezzi per case indipendenti in vendita sono
sostanzialmente stabili (+1,00%).
NOVITÀ Il risultato che vedi dipende dai dati che siamo riusciti ad estrarre dall'annuncio: ottieni una stima più accuranta di questo immobile, inserendo dati più precisi.
N.B. L'Opinione di Caasa® è un servizio sperimentale realizzato tramite tecniche di Intelligenza Artificiale, fornito senza alcuna garanzia di correttezza e completezza. Leggi il disclaimer o segnalaci un problema.
IMMAGINI
IN SINTESI
PROPOSTO DA:
Agenzia Immobiliare ArteCasa di Puccioni Andrea e C. S.a.s.
DESCRIZIONE
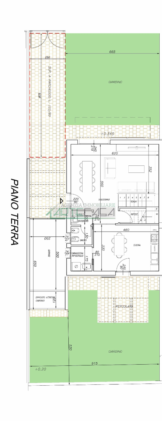
di recente costruzione con posto auto con giardino con cantina con garage con terrazza con termocondizionamento con cucina abitabile di recente costruzione con balcone senza ascensore
CASCINA, VISIGNANO: NUOVE COSTRUZIONI con certificato energetico CASACLIMA, il documento che attesta le caratteristiche energetiche, la sostenibilità e la qualità di un edificio, in linea con la Direttiva del Parlamento Europeo sulla prestazione energetica nell'edilizia (2010/31/UE). Si tratta di in intervento volto alla riqualificazione di tutta l'area. La VILLA CENTRALE proposta in vendita, IN CLASSE A, ha GIARDINO SU DUE LATI e GARAGE; internamente al piano terra gli ambienti della zona giorno sono suddivisi in cucina abitabile, sala, bagno e lavanderia, al piano superiore TRE CAMERE, la camera matrimoniale con terrazzo e bagno, altre due comode singole, anch'esse con terrazzo e bagno. Completano la proprietà, la soffitta uso ripostiglio e DUE POSTI AUTO ESCLUSIVI. L'immobile è completo di tutti i confort, come il RISCALDAMENTO A PAVIMENTO, FOTOVOLTAICO, POMPA DI CALORE, IMPIANTO DI AREAZIONE VMC, CAPPOTTO ESTERNO. Ci teniamo a precisare che l'Agenzia CasaClima è un ente di certificazione pubblico ed indipendente, non coinvolto nel processo edilizio, quindi il certificato energetico CasaClima rappresenta una garanzia di trasparenza e di qualità per i committenti. CONSEGNA INIZIO 2027. Disponibili diverse soluzioni di questa tipologia con giardino e garage. Rif. AC734T3. A TUTELA DELLE INFORMAZIONI SULLA PRIVACY, SI PRECISA CHE L’INDIRIZZO RIPORTATO È PURAMENTE INDICATIVO DELLA ZONA DI APPARTENENZA E NON CORRISPONDE ALL’ESATTA LOCALIZZAZIONE DELL’IMMOBILE. Per maggiori informazioni ci trovate a San Frediano di Cascina (PI) in Via Tosco Romagnola, 1188 oppure potete contattarci ai seguenti num.: 050/743097 – 349/5614664 Paola; sito: www.ageartecasa.it - email: immobiliare@ageartecasa.it




