Valutazione immobiliare indipendente, accurata e gratuita
Casa indipendente in vendita a Capannoli a 418.000 € (cod.6553c81c)
Caasa non ha sufficienti informazioni per commentare la casa indipendente in vendita a Capannoli - 6553c81c.
Analisi immobiliare
I dati in posseso di Caasa per quest'immobile sono insufficienti, inaffidabili o contraddittori per proporre un'analisi attendibile.
Mercato immobiliare a Capannoli
Per quanto riguarda più in generale il comune di Capannoli, sono presenti al momento circa cento annunci per
case indipendenti in vendita (meno dell'1% dell'intera provincia) .
Per quanto riguarda la dinamica dei prezzi, negli ultimi 6 mesi i prezzi medi in tutto il comune per case indipendenti in vendita sono
in sostanziale aumento (+6,53%).
NOVITÀ Il risultato che vedi dipende dai dati che siamo riusciti ad estrarre dall'annuncio: ottieni una stima più accuranta di questo immobile, inserendo dati più precisi.
N.B. L'Opinione di Caasa® è un servizio sperimentale realizzato tramite tecniche di Intelligenza Artificiale, fornito senza alcuna garanzia di correttezza e completezza. Leggi il disclaimer o segnalaci un problema.
IMMAGINI
IN SINTESI
PROPOSTO DA:
Agenzia Immobiliare LE COLLINE
DESCRIZIONE
di nuova costruzione con giardino con terrazza con cantina con termocondizionamento di nuova costruzione
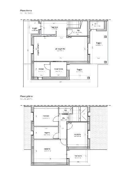
S.PIETRO BELVEDERE - Nuova costruzione di n. 2 villette bifamiliari con ingresso indipendente poste su due livelli, piano terra e primo, in classe energatica A4. Le villette con giardino su tre lati sono composte da loggia d'entrata, ingresso, ampia zona giorno open-space con loggia che affaccia sul giardino, ripostiglio, locale tecnico, lavanderia, bagno e altra loggia esterna al paino terra, da disimpegno notte, camera matrimoniale, due camere signole, bagno e ripostiglio al piano primo. Vista panoramica. Riscaldamento a pavimento con pompa di calore, isolamento termico e acusticopavimento gres porcellanato, impianto fotovoltaico 6 kwh, infissi in PVC con persiane alluminio, predisposizione climatizzazione, allarme, addolcitore, domotica, ventilazione meccanica controllata (VMC), colonnina elettrica, batteria d’accumulo. Possibilità di costruire la piscina. Possbilità di personalizzazione degli interni e dei materiali. Consegna fine 2027








