Valutazione immobiliare indipendente, accurata e gratuita
L'Opinione di Caasa® per l'appartamento in vendita a Bientina a 285.000 € (cod.65368f82)
Secondo Caasa, per l'appartamento in vendita a Bientina, la richiesta di 285.000 € è significativamente vantaggiosa rispetto agli annunci simili.
Analisi immobiliare
L'appartamento, situato nella zona OMI B1, è proposto in vendita (da Case Toscane Immobiliare sas di Parentini Letizia) a
285.000 € per una
superficie commerciale di
167 m² e quindi ad un prezzo per metro quadrato pari a
1706 €/m²
.
Questo prezzo
è più vantaggioso di quello stimato da Caasa per immobili in vendita simili per tipologia e caratteristiche, presenti nella stessa zona, che è compreso tra
2.146 €/m² e
2.363 €/m².
Data la posizione dell'appartamento sono stati utilizzati come raffronto i valori medi nelle zone limitrofe . Caasa non è stata in grado di determinare la classe energetica, ma ad affinare la stima hanno contribuito però anche lo stato dell'immobile (di recente costruzione) e la presenza di alcune caratteristiche significative come la disponibilità di una cantina. Per i motivi esposti l'intervallo dei valori possibili per l'offerta è relativamente ampio.
Mercato immobiliare a Bientina
Per quanto riguarda più in generale il comune di Bientina, sono presenti al momento più di 150 annunci per
appartamenti in vendita (meno del 5% dell'intera provincia) .
Possiamo inoltre considerare che in tutto il comune negli ultimi 6 mesi, i prezzi per appartamenti in vendita sono
in sostanziale aumento (+7,01%).
NOVITÀ Il risultato che vedi dipende dai dati che siamo riusciti ad estrarre dall'annuncio: ottieni una stima più accuranta di questo immobile, inserendo dati più precisi.
N.B. L'Opinione di Caasa® è un servizio sperimentale realizzato tramite tecniche di Intelligenza Artificiale, fornito senza alcuna garanzia di correttezza e completezza. Leggi il disclaimer o segnalaci un problema.
IMMAGINI
IN SINTESI
PROPOSTO DA:
Case Toscane Immobiliare sas di Parentini Letizia
C.so g. Matteotti 122, Pontedera (PI)
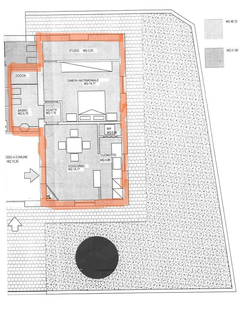
DESCRIZIONE
di recente costruzione con giardino con cantina di recente costruzione con termocondizionamento con angolo cottura con caminetto con riscaldamento autonomo
in Bientina a pochi passi da tutti i servizi proponiamo appartamento posto al piano terra di mq.167, di una palazzina duplex, completamente indipendente con ingresso da cancellino pedonale che immette in ampio giardino esclusivo di mq.190, composto da ampio ingresso/salone, sala da pranzo con cucinotto e dispensa, salone di mq.25 con camino, disimpegno notte, due ampie camere matrimoniali, due bagni, ampio ripostiglio con accesso esterno. L'appartamento in buonissime condizioni di manutenzione e subito abitabile L'immobile pu essere anche acquistato come investimento, infatti data la sua ampiezza e l'attuale suddivisione interna, con pochi lavori edili si presta molto bene per la realizzazione di due bilocali. - SC9562890




