Valutazione immobiliare indipendente, accurata e gratuita
Appartamento in vendita a Villafranca in Lunigiana a 167.000 € (cod.652689df)
Caasa non ha sufficienti informazioni per commentare l'appartamento in vendita a Villafranca in Lunigiana - 652689df.
Analisi immobiliare
I dati in posseso di Caasa per quest'immobile sono insufficienti, inaffidabili o contraddittori per proporre un'analisi attendibile.
Mercato immobiliare a Villafranca in Lunigiana
Per quanto riguarda più in generale il comune di Villafranca in Lunigiana, sono presenti al momento più di 200 annunci per
appartamenti in vendita (meno del 5% dell'intera provincia)
e il maggior numero di annunci per questa tipologia sono relativi alla zona di Filetto.
La dinamica dei prezzi in tutto il comune mostra che negli ultimi 6 mesi, i prezzi per appartamenti in vendita sono
in debole aumento (+2,05%).
NOVITÀ Il risultato che vedi dipende dai dati che siamo riusciti ad estrarre dall'annuncio: ottieni una stima più accuranta di questo immobile, inserendo dati più precisi.
N.B. L'Opinione di Caasa® è un servizio sperimentale realizzato tramite tecniche di Intelligenza Artificiale, fornito senza alcuna garanzia di correttezza e completezza. Leggi il disclaimer o segnalaci un problema.
IMMAGINI
IN SINTESI
PROPOSTO DA:
BROKER X TE
DESCRIZIONE
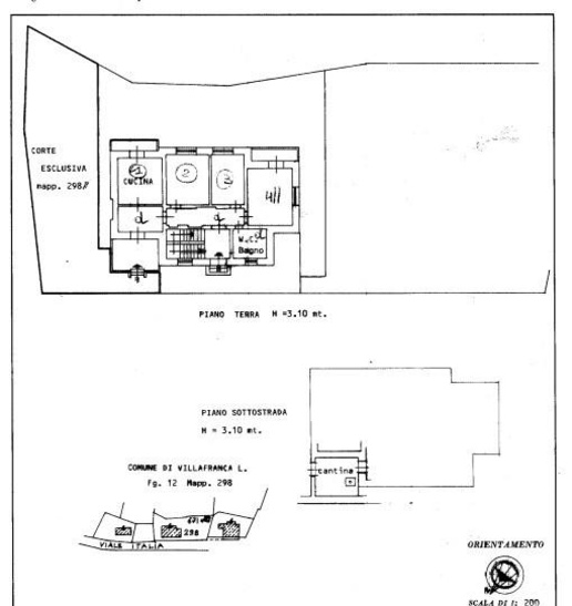
da ristrutturare con cantina con terrazza con giardino con cucina abitabile con caminetto con balcone da ristrutturare edificio storico
A Villafranca in Lunigiana, in provincia di Massa-Carrara, si propone in vendita un appartamento di 120 mq molto ben distribuiti L'immobile, situato al piano rialzato di un edificio storico, è composto da un ampio soggiorno con camino , cucina abitabile con accesso sul balcone , due camere da letto, bagno con vasca idromassaggio e un grande spazio esterno suddiviso in terrazza pranzabile dalla quale si accede al grande giardino di circa 150 mq, nel terreno è presente inoltre una zona coperta da poter utilizzare come deposito attrezzi o cantina La classe energetica dell'immobile è G. Tutte le migliorie apportate sono state accuratamente pensate per dare un tocco di originalità che rende l'apparatamento davvero accogliente, curate nei minimi dettagli anche le scelte delle porte interne e dell'arredamento della cucina ideato per massimizzare al meglio gli spazi. Si tratta di un'ottima opportunità per chi cerca una soluzione abitativa spaziosa e confortevole in un contesto storico e suggestivo. POSSIBILITÀ DI ACQUISTO A RISCATTO!! Per garantire la privacy dei nostri clienti, gli indirizzi indicati sono indicativi e si riferiscono alla zona in cui si trova l’immobile







