Valutazione immobiliare indipendente, accurata e gratuita
Casa indipendente in vendita a Massa in zona Centro Storico a 150.000 € (cod.658a83c2)
Caasa non ha sufficienti informazioni per commentare la casa indipendente a Massa in zona Centro Storico - 658a83c2.
Analisi immobiliare
I dati in posseso di Caasa per quest'immobile sono insufficienti, inaffidabili o contraddittori per proporre un'analisi attendibile.
Mercato immobiliare a Massa
Per quanto riguarda più in generale la città di Massa, sono presenti al momento ben oltre 2.000 annunci per
case indipendenti in vendita (meno di un terzo dell'intera provincia)
e il maggior numero di annunci per questa tipologia sono relativi alla zona di Marina di Massa, mentre nella zona di Centro Storico è presente un numero significativamente inferiore di annunci.
La richiesta media nella zona dove sorge la casa indipendente (Centro Storico pressi Via Ferdinando Martini) è pari a
2.300 €/m², non troppo distante dai valori medi cittadini per case indipendenti in vendita.
Possiamo inoltre considerare che in tutta la città negli ultimi 6 mesi, i prezzi per case indipendenti in vendita sono
in leggero aumento (+2,78%).
NOVITÀ Il risultato che vedi dipende dai dati che siamo riusciti ad estrarre dall'annuncio: ottieni una stima più accuranta di questo immobile, inserendo dati più precisi.
N.B. L'Opinione di Caasa® è un servizio sperimentale realizzato tramite tecniche di Intelligenza Artificiale, fornito senza alcuna garanzia di correttezza e completezza. Leggi il disclaimer o segnalaci un problema.
IMMAGINI
IN SINTESI
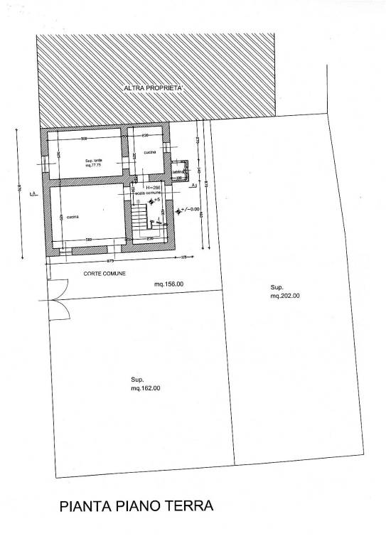
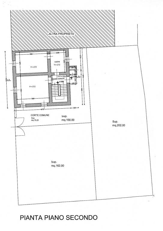
DESCRIZIONE
da ristrutturare con posto auto con giardino da ristrutturare
casa in vendita a massa semindipendete completamente da ristrutturare in vendita, in zona tranquilla ma comoda ai servizi. L'immobile si sviluppa su tre livelli abitativi e può essere frazionato in appartamenti o ristrutturato per ottenere un'unica u […]
