Valutazione immobiliare indipendente, accurata e gratuita
Appartamento in vendita a Massa in zona Centro Storico a 250.000 € (cod.654291d7)
Caasa non ha sufficienti informazioni per commentare l'appartamento a Massa in zona Centro Storico - 654291d7.
Analisi immobiliare
I dati in posseso di Caasa per quest'immobile sono insufficienti, inaffidabili o contraddittori per proporre un'analisi attendibile.
Mercato immobiliare a Massa
Per quanto riguarda più in generale la città di Massa, sono presenti al momento ben oltre 2.000 annunci per
appartamenti in vendita (meno di un terzo dell'intera provincia)
e il maggior numero di annunci per questa tipologia sono relativi proprio alla zona di Centro Storico.
La richiesta media nella zona dove sorge l'appartamento (Centro Storico pressi Piazza Aranci) è pari a
2.250 €/m², non troppo distante dai valori medi cittadini per appartamenti in vendita.
La dinamica dei prezzi in tutta la città mostra che negli ultimi 6 mesi, i prezzi per appartamenti in vendita sono
sostanzialmente stabili (-0,13%).
NOVITÀ Il risultato che vedi dipende dai dati che siamo riusciti ad estrarre dall'annuncio: ottieni una stima più accuranta di questo immobile, inserendo dati più precisi.
N.B. L'Opinione di Caasa® è un servizio sperimentale realizzato tramite tecniche di Intelligenza Artificiale, fornito senza alcuna garanzia di correttezza e completezza. Leggi il disclaimer o segnalaci un problema.
IMMAGINI
IN SINTESI
PROPOSTO DA:
AGENZIA & SERVIZI IMMOBILIARI PELLICCIA
DESCRIZIONE
da ristrutturare con cantina da ristrutturare edificio storico
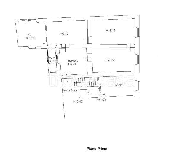
Massa, Centro Storico. Proponiamo in vendita ampio appartamento sito al Piano Primo di palazzo storico nel centro di Massa. L'immobile è composto da sei vani, oltre ripostiglio e servizio igienico. Completamente da ristrutturare offre grandi spazi da ridisegnare secondo proprio gusto ed esigenze








