Valutazione immobiliare indipendente, accurata e gratuita
Casa indipendente in vendita a Carrara in zona Avenza a 425.000 € (cod.650b9e46)
Caasa non ha sufficienti informazioni per commentare la casa indipendente a Carrara in zona Avenza - 650b9e46.
Analisi immobiliare
I dati in posseso di Caasa per quest'immobile sono insufficienti, inaffidabili o contraddittori per proporre un'analisi attendibile.
Mercato immobiliare a Carrara
Per quanto riguarda più in generale la città di Carrara, sono presenti al momento ben oltre 2.000 annunci per
case indipendenti in vendita (meno di un terzo dell'intera provincia)
e il maggior numero di annunci per questa tipologia sono relativi alla zona di Marina di Carrara, mentre nella zona di Avenza è presente un numero significativamente inferiore di annunci.
La richiesta media nella zona dove sorge la casa indipendente (Avenza) è pari a
2.095 €/m², molto vicina ai valori della zona Marina di Carrara che sono i più alti della città .
Possiamo inoltre considerare che in tutta la città negli ultimi 6 mesi, i prezzi per case indipendenti in vendita sono
in sostanziale aumento (+5,45%).
NOVITÀ Il risultato che vedi dipende dai dati che siamo riusciti ad estrarre dall'annuncio: ottieni una stima più accuranta di questo immobile, inserendo dati più precisi.
N.B. L'Opinione di Caasa® è un servizio sperimentale realizzato tramite tecniche di Intelligenza Artificiale, fornito senza alcuna garanzia di correttezza e completezza. Leggi il disclaimer o segnalaci un problema.
IMMAGINI
IN SINTESI
DESCRIZIONE
da ristrutturare con giardino da ristrutturare
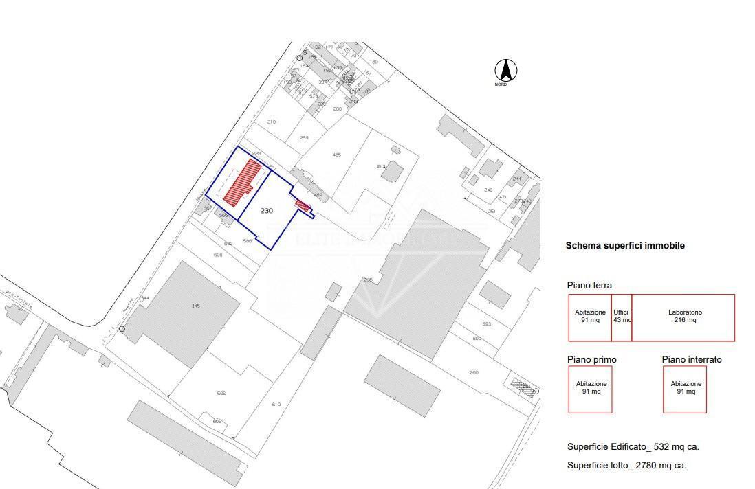
Cod.11641 Rif.Ag. E378 - Villa Indipendente con giardino esclusivo, situata in loc. Nazzano/Avenza Questa proprietà, di 322 mq commerciali da ristrutturare, offre un ottimo potenziale di sviluppo immobiliare, con spazi versatili che possono essere personalizzati secondo le vostre esigenze e preferenze. Completa la proprietà Capannone ad un piano fuori terra adiacente al fabbricato di 227 mq. e Un ufficio di 50 mq La posizione strategica, quindi la breve distanza dal mare e la comodità di tutti i principali servizi, la rendono ideale sia come residenza principale che come investimento per deposito/uffici lavorazione marmi








