Valutazione immobiliare indipendente, accurata e gratuita
Casa indipendente in vendita a Viareggio in zona Migliarina a 370.000 € (cod.657ca827)
Caasa non ha sufficienti informazioni per commentare la casa indipendente a Viareggio in zona Migliarina - 657ca827.
Analisi immobiliare
I dati in posseso di Caasa per quest'immobile sono insufficienti, inaffidabili o contraddittori per proporre un'analisi attendibile.
Mercato immobiliare a Viareggio
Per quanto riguarda più in generale la città di Viareggio, sono presenti al momento ben circa 2.000 annunci per
case indipendenti in vendita (meno del 10% dell'intera provincia)
e il maggior numero di annunci per questa tipologia sono relativi alla zona di Centro Storico, mentre la zona di Migliarina risulta molto meno attiva considerando il numero di annunci presenti.
La richiesta media nella zona dove sorge la casa indipendente (Migliarina) è pari a
2.805 €/m², molto vicina ai valori della zona Don Bosco che sono i più alti della città .
La dinamica dei prezzi in tutta la città mostra che negli ultimi 6 mesi, i prezzi per case indipendenti in vendita sono
in debole aumento (+1,29%).
NOVITÀ Il risultato che vedi dipende dai dati che siamo riusciti ad estrarre dall'annuncio: ottieni una stima più accuranta di questo immobile, inserendo dati più precisi.
N.B. L'Opinione di Caasa® è un servizio sperimentale realizzato tramite tecniche di Intelligenza Artificiale, fornito senza alcuna garanzia di correttezza e completezza. Leggi il disclaimer o segnalaci un problema.
IMMAGINI
IN SINTESI
DESCRIZIONE
con terrazza con balcone con cantina con cucina abitabile
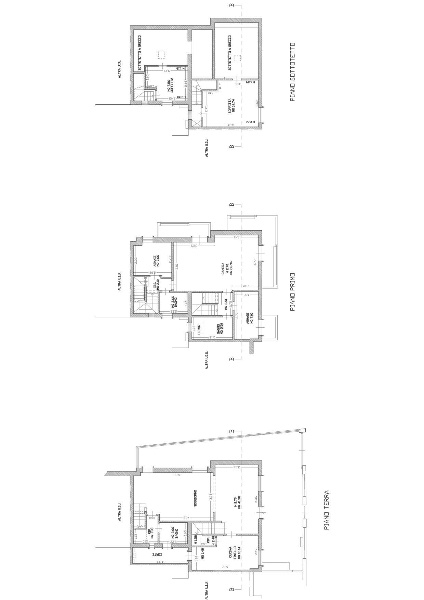
In vendita a Viareggio, zona Migliarina, affascinante villetta a schiera di grandi dimensioni. Questa proprietà vanta 10 ampi locali su più livelli, con una superficie di 200 metri quadrati totali commerciali. Unità così composta: al piano terra ingresso pedonale e carrabile nella corte disposta su due lati; ingresso in doppio salone, zona pranzo e zona soggiorno, adiacente cucina abitabile con ripostiglio/dispensa e uscita o collegamento su corticella interna, a completamento del piano terra un bagno di servizio e un ripostiglio; raggiungibile da doppia scala posizionate all'interno dell'immobile si raggiunge il piano primo composto da camera doppia di metratura importante con doppia esposizione e affaccio su bue balconi, due camerette con balcone, disimpegno e due bagni, all'ultimo piano mansardato stanze utilizzabili come studio e ulteriore camera. Considerata l'ampia superficie dell'immobile e la predisposizione di due ingressi separati e due scale interne separate viene offerta l'opportunità di ricavare due unità semi-indipendenti, quindi si presenta un ottimo affare come investimento. Inoltre la comodità di vivere in una zona di Viareggio ben collegata e ricca di servizi. Una soluzione ideale per chi cerca spazio e privacy in un contesto familiare

