Valutazione immobiliare indipendente, accurata e gratuita
L'Opinione di Caasa® per la casa indipendente in vendita a Viareggio in zona Marco Polo a 590.000 € (cod.656f74ea)
Secondo Caasa, per la casa indipendente a Viareggio in zona Marco Polo, la richiesta di 590.000 € è significativamente svantaggiosa rispetto agli annunci simili.
Analisi immobiliare
La casa indipendente, situata nei pressi di Via Livorno nella zona OMI B2, è proposta in vendita a
590.000 € per una
superficie commerciale di
130 m² e quindi ad un prezzo per metro quadrato pari a
4538 €/m²
.
Questo prezzo
è meno vantaggioso di quello stimato da Caasa per immobili in vendita simili per tipologia, caratteristiche, classe energetica e localizzati nella stessa zona OMI, che è compreso tra
3.432 €/m² e
3.734 €/m².
La conoscenza con buona approssimazione della localizzazione dell'immobile ha consentito di utilizzare come raffronto i dati medi elaborati esattamente nella zona OMI di appertenenza (CAPOLUOGO ZONA NORD, DON BOSCO, MARCO POLO) per case indipendenti (da 2.820 €/m² a 4.630 €/m²) e per case semindipendenti (da 2.840 €/m² a 4.520 €/m²). Inoltre, Caasa ha potuto affinare la stima anche con la conoscenza della classe energetica (G) oltre che dello stato dell'immobile (di recente ristrutturazione) e di alcune caratteristiche significative come il posto auto o la disponibilità di una cantina. Per queste ragioni è possibile considerare un intervallo di valori accettabili per l'offerta abbastanza limitato.
Mercato immobiliare a Viareggio
Per quanto riguarda più in generale la città di Viareggio, sono presenti al momento ben circa 2.000 annunci per
case indipendenti in vendita (meno del 10% dell'intera provincia)
e il maggior numero di annunci per questa tipologia sono relativi alla zona di Centro Storico, mentre nella zona di Marco Polo è presente un numero significativamente inferiore di annunci.
La richiesta media nella zona dove sorge la casa indipendente (Marco Polo pressi Via Livorno) è pari a
3.600 €/m², molto vicina ai valori della zona Don Bosco che sono i più alti della città .
Possiamo inoltre considerare che in tutta la città negli ultimi 6 mesi, i prezzi per case indipendenti in vendita sono
sostanzialmente stabili (+0,91%).
NOVITÀ Il risultato che vedi dipende dai dati che siamo riusciti ad estrarre dall'annuncio: ottieni una stima più accuranta di questo immobile, inserendo dati più precisi.
N.B. L'Opinione di Caasa® è un servizio sperimentale realizzato tramite tecniche di Intelligenza Artificiale, fornito senza alcuna garanzia di correttezza e completezza. Leggi il disclaimer o segnalaci un problema.
IMMAGINI
IN SINTESI
PROPOSTO DA:
Lu.Ca Immobiliare
DESCRIZIONE
di recente ristrutturazione con terrazza con balcone con giardino con cantina con posto auto di recente ristrutturazione
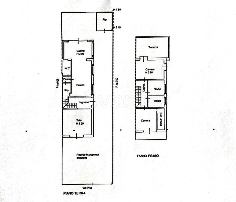
Viareggio Marco Polo proponiamo terratetto su due livelli di circa 130 Mq. libero su tre lati, con ampio giardino e posti auto, l'immobile è completamente ristrutturato e si compone di ingresso, sala soggiorno,sala pranzo e cucina da dove si accede al giardino, bagno con doccia e ripostiglio, dispone di depandance ad uso lavandaria, al primo piano abbiamo due camere matrimoniali,una camera singola,un'ampio bagno con vasca,terrazzo e un balcone, sotto tetto ad uso ripostiglio,l'immobile si presenta in ottime condizioni. Richiesta Euro 590.000,00 Trattabili FOTO IN PRIVATO SU RICHIESTA

