Valutazione immobiliare indipendente, accurata e gratuita

Appartamento in vendita a Viareggio a 275.000 € (cod.64ea9955)

Caasa non ha sufficienti informazioni per commentare l'appartamento in vendita a Viareggio - 64ea9955.

Analisi immobiliare
I dati in posseso di Caasa per quest'immobile sono insufficienti, inaffidabili o contraddittori per proporre un'analisi attendibile.
Mercato immobiliare a Viareggio
Per quanto riguarda più in generale la città di Viareggio, sono presenti al momento ben oltre 2.000 annunci per appartamenti in vendita (quasi il 20% dell'intera provincia) e il maggior numero di annunci per questa tipologia sono relativi alla zona di Centro Storico.

Relativamente alla dinamica dei prezzi, possiamo dire che negli ultimi 6 mesi i prezzi medi in tutta la città per appartamenti in vendita sono in deciso aumento (+8,24%).

NOVITÀ Il risultato che vedi dipende dai dati che siamo riusciti ad estrarre dall'annuncio: ottieni una stima più accuranta di questo immobile, inserendo dati più precisi.

N.B. L'Opinione di Caasa® è un servizio sperimentale realizzato tramite tecniche di Intelligenza Artificiale, fornito senza alcuna garanzia di correttezza e completezza. Leggi il disclaimer o segnalaci un problema.

IMMAGINI

IN SINTESI

Prezzo:
275.000 €
Superficie:
120 m²
Prezzo al m²:
2291 €/m²
Piano:
(con ascensore)
Bagni:
2
Classe energetica:
n.d.
Città:
Viareggio (LU)
Zona OMI:
B1 (CAPOLUOGO LUNGOMARE A NORD DEL MOLO, CITTA` GIARDINO)
Indirizzo:
Pubblicato:
sab 26 luglio 2025

PROPOSTO DA:

Studio Immobiliare Sarah Del Carlo

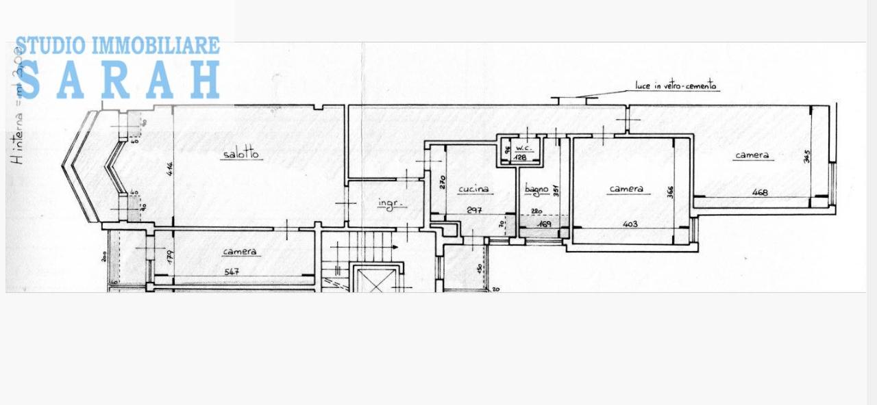
DESCRIZIONE

con terrazza con balcone con cucina abitabile con ascensore

Studio Immobiliare Sarah propone bellissimo appartamento in zona centralissima a Viareggio. L'appartamento si trova al secondo piano di una graziosa palazzina dotata d'ascensore, a pochi passi dal mare e dalla Passeggiata. La zona giorno è composta da un'ampia sala con accesso al balcone fronte strada, uno studio dove si può ricavare una cameretta, una bella cucina abitabile con balcone di servizio ed una comoda dispensa. Nella zona notte troviamo due camere matrimoniali, un bagno finestrato con vasca ed un secondo bagno di servizio. Completano la proprietà tre posti bici all'interno dell'area condominiale La palazzina è molto tranquilla e ben curata e data la vicinanza al mare rappresenta un'ottima opportunità per chi desidera la comodità data da questo incantevole appartamento. Per valorizzare ancora di più il suo potenziale, è possibile apportare delle migliorie cosicchè l'appartamento sia pronto per essere vissuto dal suo prossimo proprietario.. non esitate a chiamarci per una visita!vissuto dal suo prossimo proprietario.. non esitate a chiamarci per una visita

  • wikicasa.free
  • bancadellecase.it
  • idealista.it