Valutazione immobiliare indipendente, accurata e gratuita
L'Opinione di Caasa® per l'ufficio in affitto a Porcari a 3.000 € mese (cod.654cbc5f)
Secondo Caasa, per l'ufficio in affitto a Porcari, la richiesta di 3.000 € mese è significativamente svantaggiosa rispetto agli annunci simili.
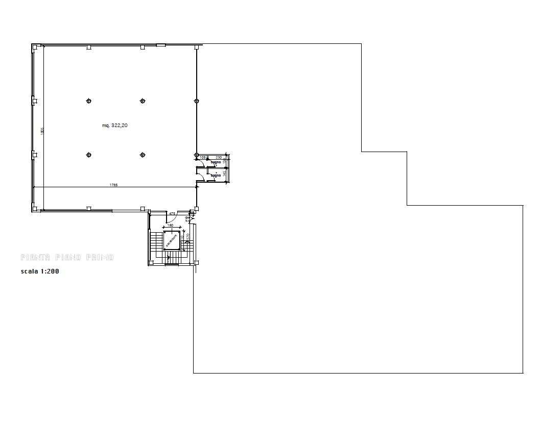
Analisi immobiliare
L'ufficio è proposto in affitto a
3.000 € mese per una
superficie commerciale di
300 m² e quindi ad un prezzo per metro quadrato pari a
10 €/m²
.
Tale valore
è decisamente superiore a quello stimato da Caasa per immobili in affitto simili per tipologia, caratteristiche e classe energetica, che è compreso tra
7,5 €/m² mese e
8,4 €/m² mese.
Sono stati utilizzati nel raffronto i soli valori medi cittadini, visto che non è stato possibile determinare in modo affidabile la posizione dell'immobile. All'elaborazione della stima ha però contribuito anche la classe energetica (G) oltre alla condizione dell'immobile (da ristrutturare) e alla presenza di alcune caratteristiche significative come il posto auto. In virtù di queste considerazioni i valori considerati accettabili per l'offerta costituiscono un intervallo comunque ampio.
Mercato immobiliare a Porcari
Per quanto riguarda più in generale il comune di Porcari, sono presenti al momento più di venti annunci per
uffici in affitto (meno del 5% dell'intera provincia)
e il maggior numero di annunci per questa tipologia sono relativi alla zona di Rughi.
La dinamica dei prezzi in tutto il comune mostra che negli ultimi 6 mesi, i prezzi per uffici in affitto sono
in leggero aumento (+3,03%).
NOVITÀ Il risultato che vedi dipende dai dati che siamo riusciti ad estrarre dall'annuncio: ottieni una stima più accuranta di questo immobile, inserendo dati più precisi.
N.B. L'Opinione di Caasa® è un servizio sperimentale realizzato tramite tecniche di Intelligenza Artificiale, fornito senza alcuna garanzia di correttezza e completezza. Leggi il disclaimer o segnalaci un problema.
IMMAGINI
IN SINTESI
PROPOSTO DA:
Sist3ma.it real estate Lucca



