Valutazione immobiliare indipendente, accurata e gratuita
Casa indipendente in vendita a Pietrasanta in zona Crociale a 295.000 € (cod.65179236)
Caasa non ha sufficienti informazioni per commentare la casa indipendente a Pietrasanta in zona Crociale - 65179236.
Analisi immobiliare
I dati in posseso di Caasa per quest'immobile sono insufficienti, inaffidabili o contraddittori per proporre un'analisi attendibile.
Mercato immobiliare a Pietrasanta
Per quanto riguarda più in generale la città di Pietrasanta, sono presenti al momento ben oltre 2.000 annunci per
case indipendenti in vendita (quasi il 20% dell'intera provincia)
e il maggior numero di annunci per questa tipologia sono relativi alla zona di Marina di Pietrasanta, mentre la zona di Crociale risulta molto meno attiva considerando il numero di annunci presenti.
La richiesta media nella zona dove sorge la casa indipendente (Crociale pressi Via Crociale) è pari a
4.005 €/m², non troppo distante dai valori medi cittadini per case indipendenti in vendita.
Possiamo inoltre considerare che in tutta la città negli ultimi 6 mesi, i prezzi per case indipendenti in vendita sono
sostanzialmente stabili (-0,81%).
NOVITÀ Il risultato che vedi dipende dai dati che siamo riusciti ad estrarre dall'annuncio: ottieni una stima più accuranta di questo immobile, inserendo dati più precisi.
N.B. L'Opinione di Caasa® è un servizio sperimentale realizzato tramite tecniche di Intelligenza Artificiale, fornito senza alcuna garanzia di correttezza e completezza. Leggi il disclaimer o segnalaci un problema.
IMMAGINI
IN SINTESI
PROPOSTO DA:
Ponchielli immobiliare
DESCRIZIONE
da ristrutturare con giardino con posto auto da ristrutturare
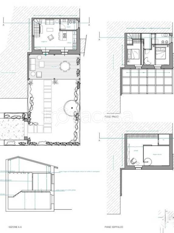
Pietrasanta in località Crociale rustico in sasso con giardino privato L'immobile ha una superficie di circa 80 mq disposti su due livelli, al piano terra la zona giorno in cui è possibile realizzare soggiorno con cucina open-space ed un bagno, al piano primo la zona notte in cui ricavare due camere da letto ed un bagno Superficie giardino circa 250 mq. Posti auto all'interno della proprietà Da ristrutturare completamente Il rendering e la planimetria rappresentano solo un idea di quello che si può realizzare a seguito della ristrutturazione La richiesta di 295.000 euro è per l'immobile nello stato attuale

