Valutazione immobiliare indipendente, accurata e gratuita
Ufficio in vendita a Massarosa in zona Quiesa a 120.000 € (cod.65277ab4)
Caasa non ha sufficienti informazioni per commentare l'ufficio in vendita a Massarosa in zona Quiesa - 65277ab4.
Analisi immobiliare
I dati in posseso di Caasa per quest'immobile sono insufficienti, inaffidabili o contraddittori per proporre un'analisi attendibile.
Mercato immobiliare a Massarosa
Per quanto riguarda più in generale la città di Massarosa, sono presenti al momento più di trenta annunci per
uffici in vendita (meno del 5% dell'intera provincia)
e il maggior numero di annunci per questa tipologia sono relativi alla zona di Stiava, ma anche la zona di Quiesa è molto attiva dal punto di vista immobiliare.
Per quanto riguarda la dinamica dei prezzi, negli ultimi 6 mesi i prezzi medi in tutta la città per uffici in vendita sono
in forte aumento (+10,97%).
NOVITÀ Il risultato che vedi dipende dai dati che siamo riusciti ad estrarre dall'annuncio: ottieni una stima più accuranta di questo immobile, inserendo dati più precisi.
N.B. L'Opinione di Caasa® è un servizio sperimentale realizzato tramite tecniche di Intelligenza Artificiale, fornito senza alcuna garanzia di correttezza e completezza. Leggi il disclaimer o segnalaci un problema.
IMMAGINI
IN SINTESI
DESCRIZIONE
di recente ristrutturazione con posto auto con terrazza di recente ristrutturazione da ristrutturare con climatizzazione
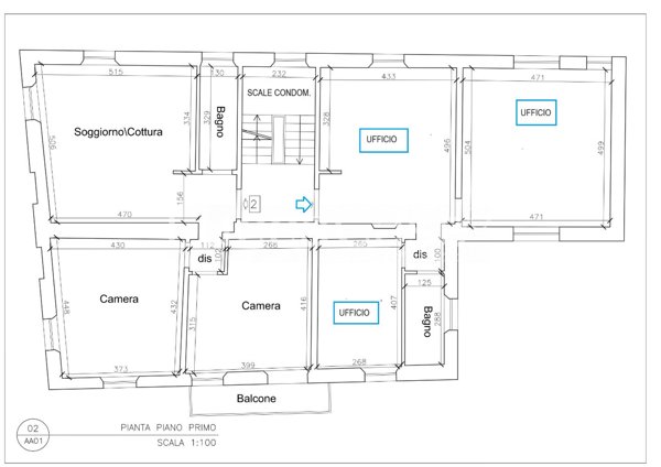
Rif.Ag. N232K - N232K - SEI ALLA RICERCA DEL TUO UFFICIO O VUOI FARE UN INVESTIMENTO ? COMUNE DI MASSAROSA ( Lucca) nel cuore della frazione di Quiesa, dove a due passi hai mezzi e negozi di prima necessità Ti propongo al piano primo di palazzina anni 30 interamente ristrutturata sia interamente che esternamete e di pochissime unità immobiliari, un ufficio di 79 mq commerciali. Ci accede allo stesso dalla doppia loggia condominiale, curatissima, è composto da tre vani, e servizio igienico con doccia finestrato. Gli ambienti, dalla tripla esposizione ( nord/sud/est) sono luminosi Possibilità di posto auto esclusivo ( il cui prezzo è di Euro 8.000) collocato sul lato sud nel fabbricato al quale si acese tramite sbarra elettrica Lufficio è dotato di split caldo/freddo in entrambi gli ambienti FINITURE : Portoncino dingresso blindato, infissi con doppi vetri pavimento in gres effetto legno, persiane in alluminio. Edificio in KhW/mq annuo 34, 51 La disponibilità è immediata - Si precsa che in prezzo indicato è relativi al solo ufficio - Per motivi di riservatezza, la geolocalizzazione dell'immobile indica la zona in particolare, ma non l'indirizzo esatto dell'immobile. - SC9514682




