Valutazione immobiliare indipendente, accurata e gratuita
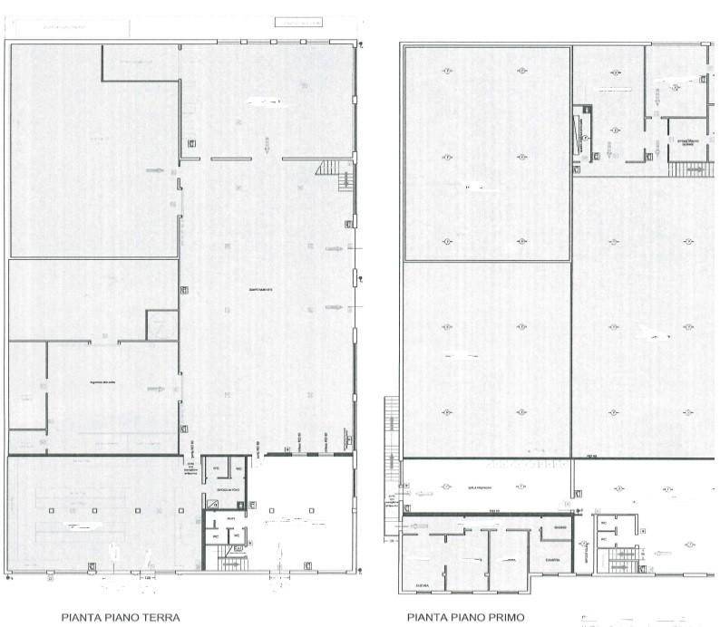
Locale commerciale in vendita a Massarosa a 2.000.000 € (cod.64f712cd)
Caasa non ha sufficienti informazioni per commentare il locale commerciale in vendita a Massarosa - 64f712cd.
	Analisi immobiliare
	
	I dati in posseso di Caasa per quest'immobile sono insufficienti, inaffidabili o contraddittori per proporre un'analisi attendibile.
	
	Mercato immobiliare a Massarosa
	
	Per quanto riguarda più in generale la città di Massarosa, sono presenti al momento più di trenta annunci per 
		locali commerciali in vendita (meno del 10% dell'intera provincia) 
	
	 e il maggior numero di annunci per questa tipologia sono relativi alla zona di Piano del Quercione.
	
	
	
	Relativamente alla dinamica dei prezzi, possiamo dire che negli ultimi 6 mesi i prezzi medi in tutta la città per locali commerciali in vendita sono 
		in sostanziale aumento (+5,38%).
	
	
	
NOVITÀ Il risultato che vedi dipende dai dati che siamo riusciti ad estrarre dall'annuncio: ottieni una stima più accuranta di questo immobile, inserendo dati più precisi.
N.B. L'Opinione di Caasa® è un servizio sperimentale realizzato tramite tecniche di Intelligenza Artificiale, fornito senza alcuna garanzia di correttezza e completezza. Leggi il disclaimer o segnalaci un problema.
IMMAGINI
IN SINTESI
PROPOSTO DA:
CASE BELLE
 
                               
                               
                               
                               
                              