Valutazione immobiliare indipendente, accurata e gratuita
Casa indipendente in vendita a Lucca in zona zona San Marco a 215.000 € (cod.65552ae4)
Caasa non ha sufficienti informazioni per commentare la casa indipendente a Lucca in zona zona San Marco - 65552ae4.
Analisi immobiliare
I dati in posseso di Caasa per quest'immobile sono insufficienti, inaffidabili o contraddittori per proporre un'analisi attendibile.
Mercato immobiliare a Lucca
Per quanto riguarda più in generale la città di Lucca, sono presenti al momento ben oltre 3.000 annunci per
case indipendenti in vendita (meno di un terzo dell'intera provincia)
e il maggior numero di annunci per questa tipologia sono relativi alla zona di Centro Città, mentre la zona di zona San Marco risulta molto meno attiva considerando il numero di annunci presenti.
La richiesta media nella zona dove sorge la casa indipendente (zona San Marco) è pari a
2.560 €/m², molto vicina ai valori della zona Massa Pisana che sono i più alti della città .
Per quanto riguarda la dinamica dei prezzi, negli ultimi 6 mesi i prezzi medi in tutta la città per case indipendenti in vendita sono
in aumento (+4,68%).
NOVITÀ Il risultato che vedi dipende dai dati che siamo riusciti ad estrarre dall'annuncio: ottieni una stima più accuranta di questo immobile, inserendo dati più precisi.
N.B. L'Opinione di Caasa® è un servizio sperimentale realizzato tramite tecniche di Intelligenza Artificiale, fornito senza alcuna garanzia di correttezza e completezza. Leggi il disclaimer o segnalaci un problema.
IMMAGINI
IN SINTESI
PROPOSTO DA:
ESSEGI IMMOBILIARE
VIALE PACINI, 115, Lucca (LU)
Verificata da Caasa®
DESCRIZIONE
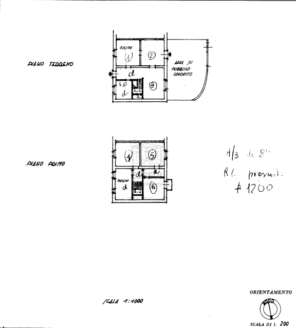
con cantina con terrazza con cucina abitabile con balcone
IA04130 -TERRATETTO A POCHI PASSI DALLE MURA - A 1,5 chilometri dal centro storico di Lucca, in posizione comoda e ben servita, Essegi Immobiliare propone in vendita un terratetto centrale in condizioni abitabili, ideale per chi desidera ampi spazi e indipendenza, senza rinunciare alla vicinanza alla città. L’abitazione si sviluppa su due livelli principali oltre a un’ampia soffitta utilizzabile come pratico ripostiglio. Al piano terra si viene accolti da un ingresso, al quale si accede da piccola strada privata, che conduce a un'ampia zona giorno composta da una luminosa sala, tinello, cucina abitabile e un comodo bagno. Salendo al piano mezzanino troviamo un utile vano ripostiglio, mentre al primo piano si sviluppa la zona notte con tre spaziose camere matrimoniali e un secondo bagno. Esternamente l’immobile è corredato da un balcone e da una resede privata e recintata con uscita dalla sala. Un’ottima occasione per famiglie o per chi cerca una soluzione abitativa completa e spaziosa a due passi dalle bellezze di Lucca. Richiesta € 215.000 N.B.: Avvisiamo che la localizzazione dell'immobile è approssimativa: l'indirizzo e la posizione sulla mappa non corrispondono alla sua esatta ubicazione



