Valutazione immobiliare indipendente, accurata e gratuita
Casa indipendente in vendita a Forte dei Marmi a 3.900.000 € (cod.6583def6)
Caasa non ha sufficienti informazioni per commentare la casa indipendente in vendita a Forte dei Marmi - 6583def6.
Analisi immobiliare
I dati in posseso di Caasa per quest'immobile sono insufficienti, inaffidabili o contraddittori per proporre un'analisi attendibile.
Mercato immobiliare a Forte dei Marmi
Per quanto riguarda più in generale il comune di Forte dei Marmi, sono presenti al momento ben oltre 2.000 annunci per
case indipendenti in vendita (quasi il 20% dell'intera provincia)
e il maggior numero di annunci per questa tipologia sono relativi alla zona di Vittoria Apuana.
Possiamo inoltre considerare che in tutto il comune negli ultimi 6 mesi, i prezzi per case indipendenti in vendita sono
in aumento (+3,81%).
NOVITÀ Il risultato che vedi dipende dai dati che siamo riusciti ad estrarre dall'annuncio: ottieni una stima più accuranta di questo immobile, inserendo dati più precisi.
N.B. L'Opinione di Caasa® è un servizio sperimentale realizzato tramite tecniche di Intelligenza Artificiale, fornito senza alcuna garanzia di correttezza e completezza. Leggi il disclaimer o segnalaci un problema.
IMMAGINI
IN SINTESI
DESCRIZIONE
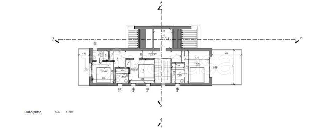
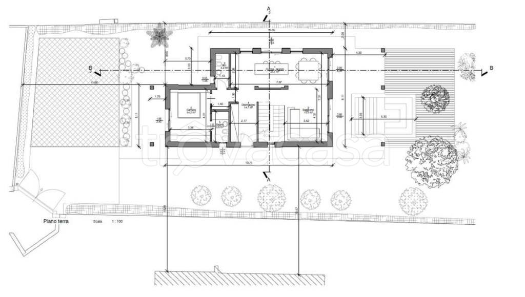
di nuova costruzione con giardino con terrazza con posto auto di nuova costruzione
Forte dei Marmi, in zona centrale vicinissima al mare, in fase di costruzione bellissima villa con piscina di 18 mq composta da: salone, cucina, una camera, bagno, ampio portico e posti auto a piano terra, tre camere matrimoniali ognuna con il bagno oltre a terrazze al primo piano. La nostra agenzia opera sul mercato immobiliare da oltre quarant’anni, dapprima a Reggio Emilia e successivamente con gli uffici di Forte dei Marmi. Ci occupiamo di compravendite, locazioni ed assistenza tecnica. Tramite una fitta rete di collaborazioni siamo in grado di accompagnare il cliente in tutte le fasi della trattativa, dalla ricerca dell’immobile più adatto alle sue esigenze fino al suo effettivo acquisto. Potete contattarci telefonicamente, e saremo lieti di incontrarvi di persona presso i nostri uffici. *Per motivi di Privacy l'indirizzo in scheda è indicativo e l'immobile è comunque situato nelle immediate vicinanze* *Per motivi di Privacy estetica del fabbricato non è totalmente corrispondente allo stato di fatto. Si precisa che, per motivi di privacy, le fotografie sono a puro titolo esplicativo e non totalmente corrispondenti allo stato di fatto dell’immobile


