Valutazione immobiliare indipendente, accurata e gratuita
Casa indipendente in vendita a Forte dei Marmi a 6.000.000 € (cod.6581bf0d)
Caasa non ha sufficienti informazioni per commentare la casa indipendente in vendita a Forte dei Marmi - 6581bf0d.
Analisi immobiliare
I dati in posseso di Caasa per quest'immobile sono insufficienti, inaffidabili o contraddittori per proporre un'analisi attendibile.
Mercato immobiliare a Forte dei Marmi
Per quanto riguarda più in generale il comune di Forte dei Marmi, sono presenti al momento ben oltre 2.000 annunci per
case indipendenti in vendita (quasi il 20% dell'intera provincia)
e il maggior numero di annunci per questa tipologia sono relativi alla zona di Vittoria Apuana.
Relativamente alla dinamica dei prezzi, possiamo dire che negli ultimi 6 mesi i prezzi medi in tutto il comune per case indipendenti in vendita sono
in aumento (+3,45%).
NOVITÀ Il risultato che vedi dipende dai dati che siamo riusciti ad estrarre dall'annuncio: ottieni una stima più accuranta di questo immobile, inserendo dati più precisi.
N.B. L'Opinione di Caasa® è un servizio sperimentale realizzato tramite tecniche di Intelligenza Artificiale, fornito senza alcuna garanzia di correttezza e completezza. Leggi il disclaimer o segnalaci un problema.
IMMAGINI
IN SINTESI
DESCRIZIONE
di nuova costruzione con giardino con terrazza con cantina di nuova costruzione con balcone con ascensore
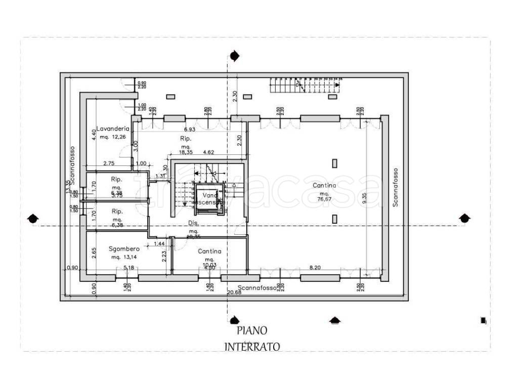
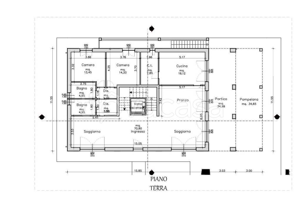
VILLA UNIFAMIRIARE IN FASE DI ULTIMAZIONE SU DI UN LOTTO DI CIRCA 2.500 MQ REALIZZATA SU QUATTRO LIVELLI, PIANO INTERRATO, PIANO TERRA, PIANO PRIMO E PIANO SOTTOTETTO. IL PIANO INTERRATO SI SVILUPPA SU UNA SUPERFICIE LORDA DI 200 MQ A CUI VANNO AGGIUNTI 80 MQ FRA SPAZI ESTERNI E SCANNAFOSSI. IN QUESTO PIANO TROVANO SPAZIO LA LAVANDERIA, LA CANTINA, BAGNI, ALCUNI SERVIZI COME PALESTRA E ZONA BENESSERE OLTRE AD UN AMPIO LOCALE PER INTRATTENIMENTO. UNA SCALA INTERNA CON ASCENSORE E UNA SCALA ESTERNA COLLEGANO QUESTO PIANO AL PIANO TERRA. AL PIANO TERRA, DI 180 MQ SI TROVANO CUCINA, SOGGIORNO, PRANZO OLTRE A 2 CAMERE CON 2 BAGNI E UNA CENTRALE TECNICA. LO SPAZIO ESTERNO E' COMPLETATO DA LOGGIA E POMPEIANA DI CIRCA 70 MQ, PISCINA DI CIRCA 100 MQ OLTRE A PARCHEGGIO PER 6 AUTO. AL PRIMO PIANO, DI 170 MQ, SI TROVANO 6 CAMERE E 4 BAGNI, COLLEGATI CON IL PIANO TERRA DA SCALA E ASCENSORE INTERNO, OLTRE A 4 BALCONI A SERVIZIO DELLE CAMERE. PIANO SOTTOTETTO DI 180 MQ COLLEGATO DA SCALETTA INTERNA CON IL PIANO PRIMO. *Per motivi di Privacy l'indirizzo in scheda è indicativo e l'immobile è comunque situato nelle immediate vicinanze* La nostra agenzia opera sul mercato immobiliare da oltre quarant’anni, dapprima a Reggio Emilia e successivamente con gli uffici di Forte dei Marmi. Ci occupiamo di compravendite, locazioni ed assistenza tecnica. Tramite una fitta rete di collaborazioni siamo in grado di accompagnare il cliente in tutte le fasi della trattativa, dalla ricerca dell’immobile più adatto alle sue esigenze fino al suo effettivo acquisto. Potete contattarci telefonicamente, e saremo lieti di incontrarvi di persona presso i nostri uffici

