Valutazione immobiliare indipendente, accurata e gratuita
L'Opinione di Caasa® per la casa indipendente a Forte dei Marmi in zona Vittoria Apuana a 2.900.000 € (cod.65724874)
Secondo Caasa, per la casa indipendente a Forte dei Marmi Vittoria Apuana, la richiesta di 2.900.000 € è significativamente svantaggiosa rispetto agli annunci simili.
Analisi immobiliare
La casa indipendente, situata nella zona OMI B2, è proposta in vendita a
2.900.000 € per una
superficie commerciale di
200 m² e quindi ad un prezzo per metro quadrato pari a
14500 €/m²
.
Questo valore
è significativamente più alto di quello stimato da Caasa per immobili in vendita simili per tipologia, caratteristiche, classe energetica e localizzati nella stessa zona OMI, che è compreso tra
11.517 €/m² e
12.327 €/m².
La conoscenza con buona approssimazione della localizzazione dell'immobile ha consentito di utilizzare come raffronto i dati medi elaborati esattamente nella zona OMI di appertenenza (CAPOLUOGO - VITTORIA APUANA -) per case indipendenti (da 6.290 €/m² a 11.530 €/m²) e per ville (da 6.220 €/m² a 11.535 €/m²). Inoltre, Caasa ha potuto affinare la stima anche con la conoscenza della classe energetica (A). Per i motivi esposti è possibile considerare un intervallo di valori accettabili per l'offerta abbastanza limitato.
Mercato immobiliare a Forte dei Marmi
Per quanto riguarda più in generale il comune di Forte dei Marmi, sono presenti al momento ben oltre 2.000 annunci per
case indipendenti in vendita (quasi il 20% dell'intera provincia)
e il maggior numero di annunci per questa tipologia sono relativi proprio alla zona di Vittoria Apuana.
La richiesta media nella zona dove sorge la casa indipendente (Vittoria Apuana) è pari a
8.655 €/m² che la rende la più economica del comune .
Per quanto riguarda la dinamica dei prezzi, negli ultimi 6 mesi i prezzi medi in tutto il comune per case indipendenti in vendita sono
in aumento (+3,52%).
NOVITÀ Il risultato che vedi dipende dai dati che siamo riusciti ad estrarre dall'annuncio: ottieni una stima più accuranta di questo immobile, inserendo dati più precisi.
N.B. L'Opinione di Caasa® è un servizio sperimentale realizzato tramite tecniche di Intelligenza Artificiale, fornito senza alcuna garanzia di correttezza e completezza. Leggi il disclaimer o segnalaci un problema.
IMMAGINI
IN SINTESI
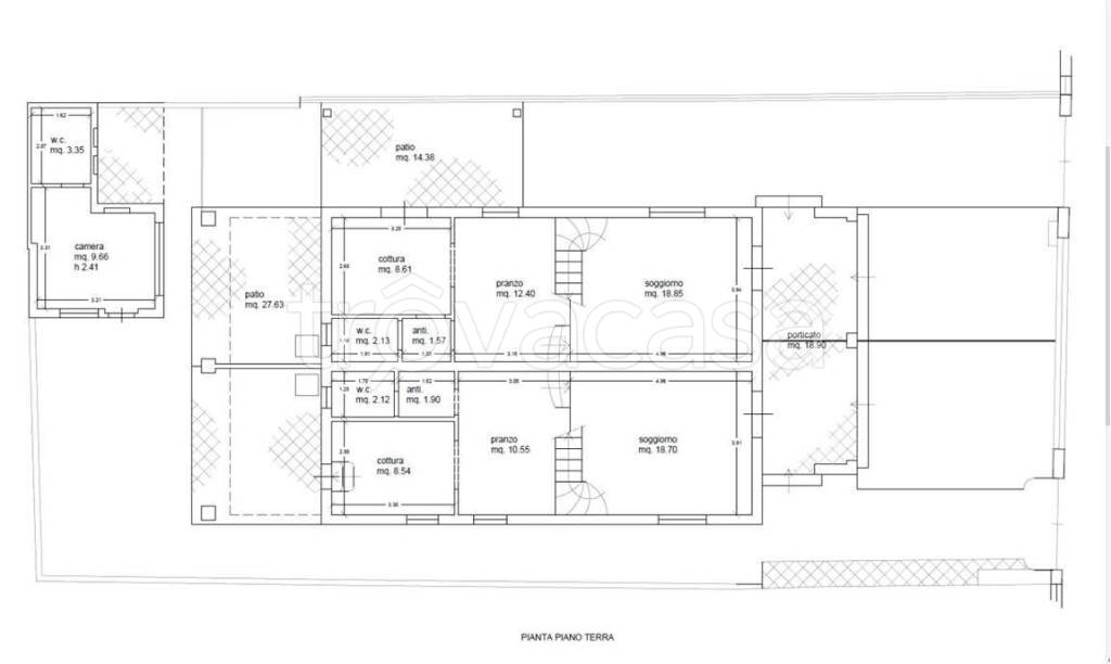
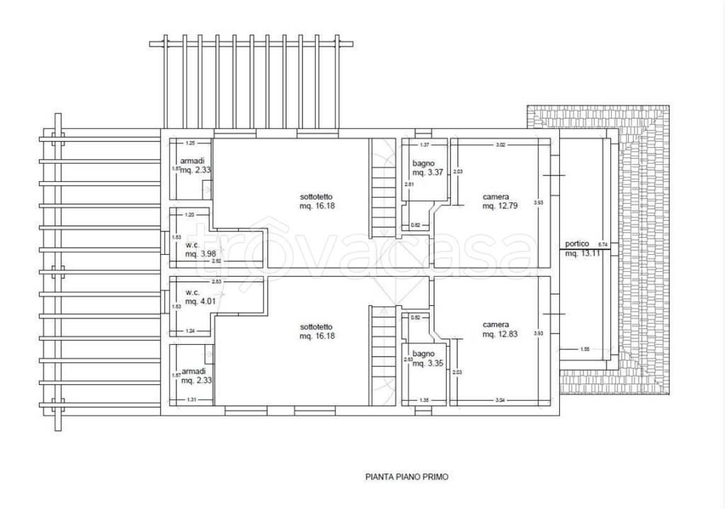
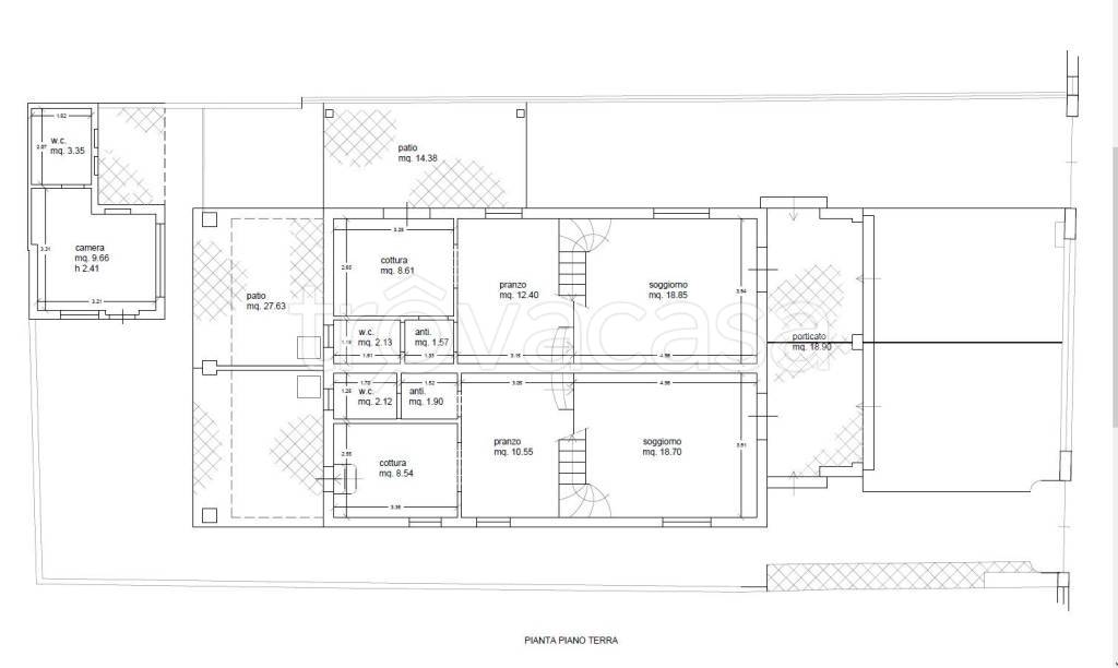
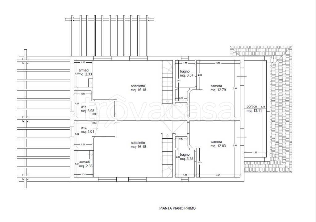
DESCRIZIONE
con giardino con terrazza con cortile
Vittoria Apuana a soli 50 metri dalla spiaggia, vendesi bifamiliare in blocco. Si tratta di due unità speculari composte da soggiorno, pranzo, cucina, antibagno, bagno, doppio patio e portico al piano terra. Due camere, due bagni e terrazza al piano primo. Giardino tutto intorno all'immobile, dove insiste una dependance composta da camera con bagno oltre a terrazza prendisole. *Per motivi di Privacy l'indirizzo in scheda è indicativo e l'immobile è comunque situato nelle immediate vicinanze* La nostra agenzia opera sul mercato immobiliare da oltre quarant’anni, dapprima a Reggio Emilia e successivamente con gli uffici di Forte dei Marmi. Ci occupiamo di compravendite, locazioni ed assistenza tecnica. Tramite una fitta rete di collaborazioni siamo in grado di accompagnare il cliente in tutte le fasi della trattativa, dalla ricerca dell’immobile più adatto alle sue esigenze fino al suo effettivo acquisto. Potete contattarci telefonicamente, e saremo lieti di incontrarvi di persona presso i nostri uffici


