Valutazione immobiliare indipendente, accurata e gratuita
L'Opinione di Caasa® per la casa indipendente a Forte dei Marmi in zona Vittoria Apuana a 3.900.000 € (cod.651d385e)
Secondo Caasa, per la casa indipendente a Forte dei Marmi Vittoria Apuana, la richiesta di 3.900.000 € è significativamente svantaggiosa rispetto agli annunci simili.
Analisi immobiliare
La casa indipendente, situata nella zona OMI B1, è proposta in vendita a
3.900.000 € per una
superficie commerciale di
330 m² e quindi ad un prezzo per metro quadrato pari a
11818 €/m²
.
Questo prezzo
è meno vantaggioso di quello stimato da Caasa per immobili in vendita simili per tipologia e caratteristiche e localizzati nella stessa zona OMI, che è compreso tra
9.105 €/m² e
9.956 €/m².
Grazie alla conoscenza con buona approssimazione della localizzazione dell'immobile, è stato possibile utilizzare come raffronto i dati medi elaborati esattamente nella zona OMI di appertenenza (CAPOLUOGO - ROMA IMPERIALE) per case indipendenti (da 6.220 €/m² a 11.560 €/m²) e per ville (da 6.220 €/m² a 11.540 €/m²). Anche se Caasa non è riuscita a determinare la classe energetica, ad affinare la stima ha contribuito anche la presenza di alcune caratteristiche significative come la disponibilità di una cantina o il posto auto. In virtù di queste considerazioni l'intervallo dei valori accettabili per l'offerta è relativamente limitato.
Mercato immobiliare a Forte dei Marmi
Per quanto riguarda più in generale il comune di Forte dei Marmi, sono presenti al momento ben oltre 2.000 annunci per
case indipendenti in vendita (quasi il 20% dell'intera provincia)
e il maggior numero di annunci per questa tipologia sono relativi proprio alla zona di Vittoria Apuana.
La richiesta media nella zona dove sorge la casa indipendente (Vittoria Apuana) è pari a
8.725 €/m², molto vicina ai valori della zona Roma Imperiale che sono i più alti del comune .
Possiamo inoltre considerare che in tutto il comune negli ultimi 6 mesi, i prezzi per case indipendenti in vendita sono
in sostanziale aumento (+7,10%).
NOVITÀ Il risultato che vedi dipende dai dati che siamo riusciti ad estrarre dall'annuncio: ottieni una stima più accuranta di questo immobile, inserendo dati più precisi.
N.B. L'Opinione di Caasa® è un servizio sperimentale realizzato tramite tecniche di Intelligenza Artificiale, fornito senza alcuna garanzia di correttezza e completezza. Leggi il disclaimer o segnalaci un problema.
IMMAGINI
IN SINTESI
PROPOSTO DA:
AGENZIA & SERVIZI IMMOBILIARI PELLICCIA
DESCRIZIONE
con giardino con posto auto con terrazza con cucina abitabile con cantina
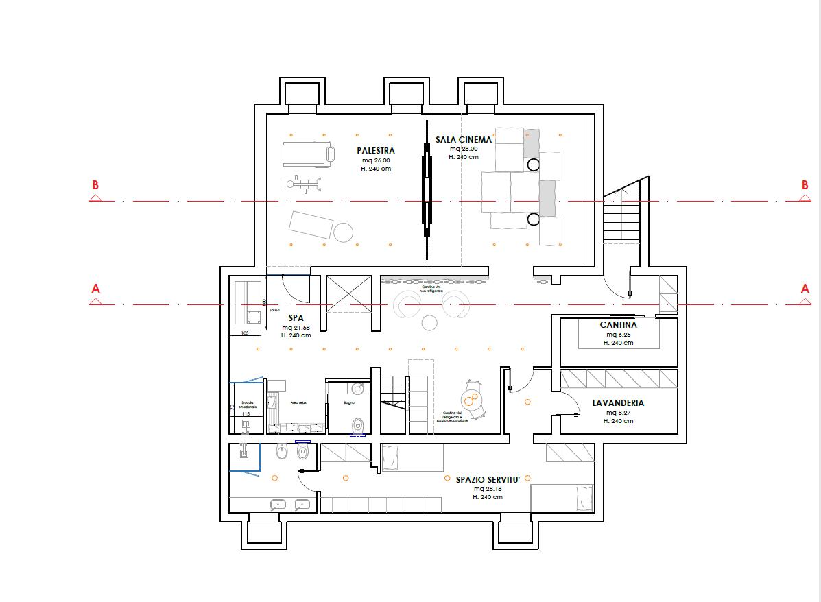
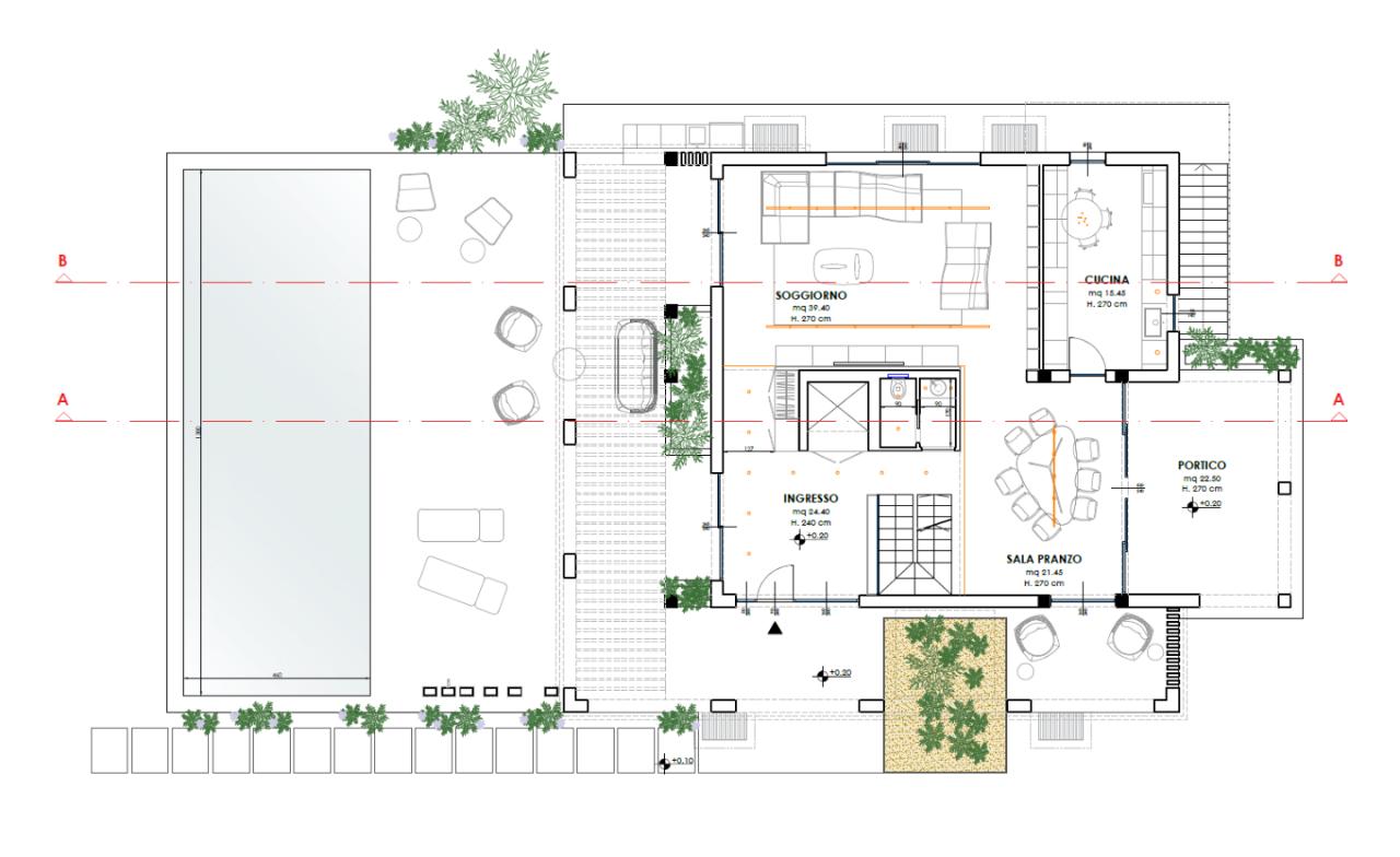
Cod.12033 Rif.Ag. RV220 - Forte dei Marmi Vittoria Apuana. Proponiamo in vendita stupenda villa singola con piscina di prossima realizzazione. Il progetto, personalizzabile a seconda delle esigenze, prevede una villa di circa 330 mq così suddivisi: Al piano terra ingresso, ampio salone, sala da pranzo, cucina abitabile, bagno di servizio e portico per il pranzo all'aperto. Al primo piano la zona notte composta da ampia camera padronale con guardaroba e bagno, camera singola con bagno privato ed altre due camere matrimoniali servite da un bagno oltre ad ampie terrazze. Ampio e luminoso interrato dove poter realizzare un piccolo appartamento di servizio composto da camera e bagno oltre a lavanderia, spa, palestra e cantina. La suddivisione degli spazi può essere personalizzata a piacimento del cliente. Ampio giardino di circa 1500 mq sui quattro lati dell'immobile con vari posti auto interni ed una splendida piscina



