Valutazione immobiliare indipendente, accurata e gratuita
L'Opinione di Caasa® per la casa indipendente in vendita a Forte dei Marmi a 6.000.000 € (cod.65175f63)
Secondo Caasa, per la casa indipendente in vendita a Forte dei Marmi, la richiesta di 6.000.000 € è equilibrata rispetto agli annunci simili.
Analisi immobiliare
La casa indipendente, situata vicino a Via Francesco Carrara nella zona OMI C1, è proposta in vendita a
6.000.000 € per una
superficie commerciale di
450 m² e quindi ad un prezzo per metro quadrato pari a
13333 €/m²
.
Tale valore
è in linea con quello stimato da Caasa per immobili in vendita simili per tipologia, caratteristiche, classe energetica e localizzati nella stessa zona OMI, che è compreso tra
12.995 €/m² e
13.863 €/m².
La conoscenza con buona approssimazione della localizzazione dell'immobile ha consentito di utilizzare come raffronto i dati medi elaborati esattamente nella zona OMI di appertenenza (LUNGOMARE FINO AL CONFINE CON CINQUALE, ED ENTROTERRA CAPOLUOGO FINO A CAVALL...). Inoltre, Caasa ha potuto affinare la stima anche con la conoscenza della classe energetica (A+) oltre che dello stato dell'immobile (di nuova costruzione) e di alcune caratteristiche significative come il posto auto o la disponibilità di una cantina. Per i motivi esposti i valori accettabili per l'offerta costituiscono un intervallo abbastanza limitato.
Mercato immobiliare a Forte dei Marmi
Per quanto riguarda più in generale il comune di Forte dei Marmi, sono presenti al momento ben oltre 2.000 annunci per
case indipendenti in vendita (quasi il 20% dell'intera provincia)
e il maggior numero di annunci per questa tipologia sono relativi alla zona di Vittoria Apuana.
La dinamica dei prezzi in tutto il comune mostra che negli ultimi 6 mesi, i prezzi per case indipendenti in vendita sono
in aumento (+3,43%).
NOVITÀ Il risultato che vedi dipende dai dati che siamo riusciti ad estrarre dall'annuncio: ottieni una stima più accuranta di questo immobile, inserendo dati più precisi.
N.B. L'Opinione di Caasa® è un servizio sperimentale realizzato tramite tecniche di Intelligenza Artificiale, fornito senza alcuna garanzia di correttezza e completezza. Leggi il disclaimer o segnalaci un problema.
IMMAGINI
IN SINTESI
DESCRIZIONE
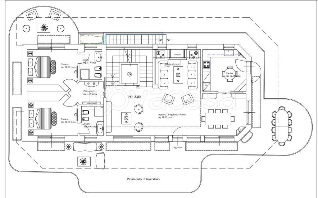
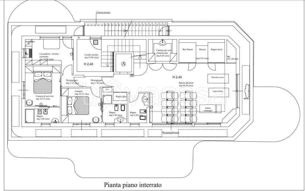
di nuova costruzione con giardino con terrazza con posto auto con cucina abitabile con cantina di nuova costruzione
Prossima realizzazione, in zona residenziale e prestigiosa villa singola di circa 450 mq di nuova costruzione cosi distribuita. Piano Terra:- Zona open-space, di circa 50,00 mq, ingresso, soggiorno, sala pranzo. Cucina abitabile, due camere matrimoniale e due bagni.Piano Primo: camera padronale con bagno e cabina armadi, bagno di servizio disimpegno con accesso esclusivo alla terrazza di 140 mq con piscina con idromassaggio.Piano interrato:due camere matrimoniali, due bagni con box doccia, zona locale tecnico, lavanderia, palestra, Box sauna, Bagno turco, doccia, cantina vini. Ampio giardino di circa 1000 mq, con marciapiede pavimentazione in travertino, parcheggio coperto di 135 mq. La nostra agenzia opera sul mercato immobiliare da oltre quarant’anni, dapprima a Reggio Emilia e successivamente con gli uffici di Forte dei Marmi. Ci occupiamo di compravendite, locazioni ed assistenza tecnica. Tramite una fitta rete di collaborazioni siamo in grado di accompagnare il cliente in tutte le fasi della trattativa, dalla ricerca dell’immobile più adatto alle sue esigenze fino al suo effettivo acquisto. Potete contattarci telefonicamente, e saremo lieti di incontrarvi di persona presso i nostri uffici. *Per motivi di Privacy l'indirizzo in scheda è indicativo e l'immobile è comunque situato nelle immediate vicinanze* *Per motivi di Privacy estetica del fabbricato non è totalmente corrispondente allo stato di fatto. Si precisa che, per motivi di privacy, le fotografie sono a puro titolo esplicativo e non totalmente corrispondenti allo stato di fatto dell’immobile


