Valutazione immobiliare indipendente, accurata e gratuita
Casa indipendente a Forte dei Marmi in zona Roma Imperiale a 1.300.000 € (cod.650be106)
Caasa non ha sufficienti informazioni per commentare la casa indipendente a Forte dei Marmi Roma Imperiale - 650be106.
Analisi immobiliare
I dati in posseso di Caasa per quest'immobile sono insufficienti, inaffidabili o contraddittori per proporre un'analisi attendibile.
Mercato immobiliare a Forte dei Marmi
Per quanto riguarda più in generale il comune di Forte dei Marmi, sono presenti al momento ben oltre 2.000 annunci per
case indipendenti in vendita (quasi il 20% dell'intera provincia)
e il maggior numero di annunci per questa tipologia sono relativi alla zona di Vittoria Apuana, mentre la zona di Roma Imperiale risulta molto meno attiva considerando il numero di annunci presenti.
La richiesta media nella zona dove sorge la casa indipendente (Roma Imperiale) è pari a
9.770 €/m² e ne fa la più pregiata del comune .
Possiamo inoltre considerare che in tutto il comune negli ultimi 6 mesi, i prezzi per case indipendenti in vendita sono
in sostanziale aumento (+7,10%).
NOVITÀ Il risultato che vedi dipende dai dati che siamo riusciti ad estrarre dall'annuncio: ottieni una stima più accuranta di questo immobile, inserendo dati più precisi.
N.B. L'Opinione di Caasa® è un servizio sperimentale realizzato tramite tecniche di Intelligenza Artificiale, fornito senza alcuna garanzia di correttezza e completezza. Leggi il disclaimer o segnalaci un problema.
IMMAGINI
IN SINTESI
DESCRIZIONE
di recente ristrutturazione con giardino con posto auto di recente ristrutturazione da ristrutturare
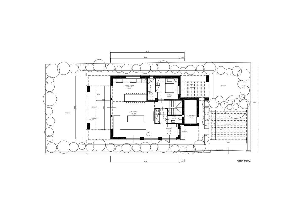
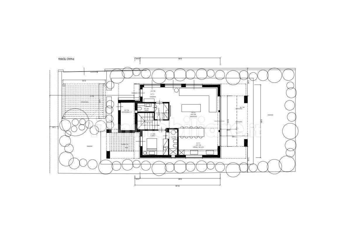
Cod.11515 Rif.Ag. VRI320 - FORTE DEI MARMI - ROMA IMPERIALE - In una delle zone più prestigiose di Forte dei Marmi, nel quartiere di Roma Imperiale, proponiamo in vendita villa indipendente con giardino privato e posto auto. A soli 1.000 metri dal mare, l'immobile è un'ottima opportunità di investimento per chi desidera una completa ristrutturazione. Il progetto prevede la trasformazione in una residenza esclusiva di circa 170 mq con 4 camere, 3 o 4 bagni, ampio soggiorno, cucina abitabile e pompeiana esterna. Attualmente, la proprietà include ingresso, sala da pranzo, cucinotto, soggiorno, 3 camere, 2 bagni e ampio sottotetto, con due locali commerciali convertibili. * Per garantire la privacy, l'indirizzo fornito è approssimativo, ma la proprietà si trova nelle vicinanze immediate. * GRUPPO DOMCA L'Agenzia Gruppo Dom.Ca, fondata nel 1981, contribuisce a plasmare la tradizione immobiliare di Forte dei Marmi integrando armoniosamente l'adozione di soluzioni tecnologiche all'avanguardia, posizionandola al centro della scena immobiliare di Forte dei Marmi. Questa fusione di tradizione e innovazione è un riflesso dell'approccio proattivo della Gruppo Dom.Ca nel soddisfare le esigenze mutevoli del mercato immobiliare. L'agenzia si distingue non solo per la sua profonda conoscenza del territorio e la sua esperienza pluriennale, ma anche per la sua volontà di adottare le migliori pratiche tecnologiche al fine di offrire servizi all'altezza delle aspettative rendendola un punto di riferimento dinamico e innovativo nel panorama immobiliare locale







