Valutazione immobiliare indipendente, accurata e gratuita
Casa indipendente in vendita a Forte dei Marmi a 2.900.000 € (cod.64c26441)
Caasa non ha sufficienti informazioni per commentare la casa indipendente in vendita a Forte dei Marmi - 64c26441.
Analisi immobiliare
I dati in posseso di Caasa per quest'immobile sono insufficienti, inaffidabili o contraddittori per proporre un'analisi attendibile.
Mercato immobiliare a Forte dei Marmi
Per quanto riguarda più in generale il comune di Forte dei Marmi, sono presenti al momento ben oltre 2.000 annunci per
case indipendenti in vendita (quasi il 20% dell'intera provincia)
e il maggior numero di annunci per questa tipologia sono relativi alla zona di Vittoria Apuana.
Relativamente alla dinamica dei prezzi, possiamo dire che negli ultimi 6 mesi i prezzi medi in tutto il comune per case indipendenti in vendita sono
in sostanziale aumento (+7,10%).
NOVITÀ Il risultato che vedi dipende dai dati che siamo riusciti ad estrarre dall'annuncio: ottieni una stima più accuranta di questo immobile, inserendo dati più precisi.
N.B. L'Opinione di Caasa® è un servizio sperimentale realizzato tramite tecniche di Intelligenza Artificiale, fornito senza alcuna garanzia di correttezza e completezza. Leggi il disclaimer o segnalaci un problema.
IMMAGINI
IN SINTESI
DESCRIZIONE
di nuova costruzione con terrazza di nuova costruzione
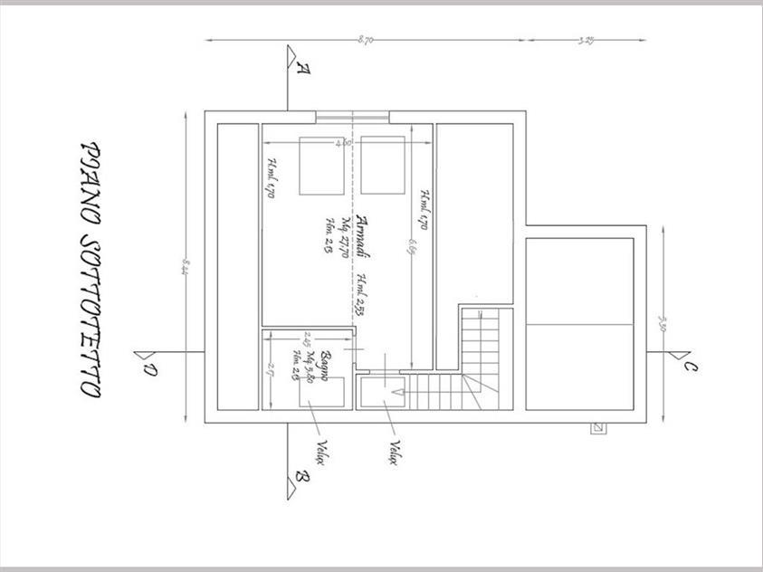
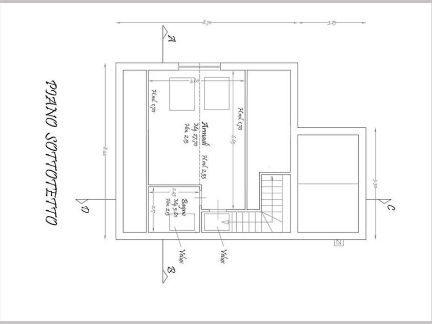
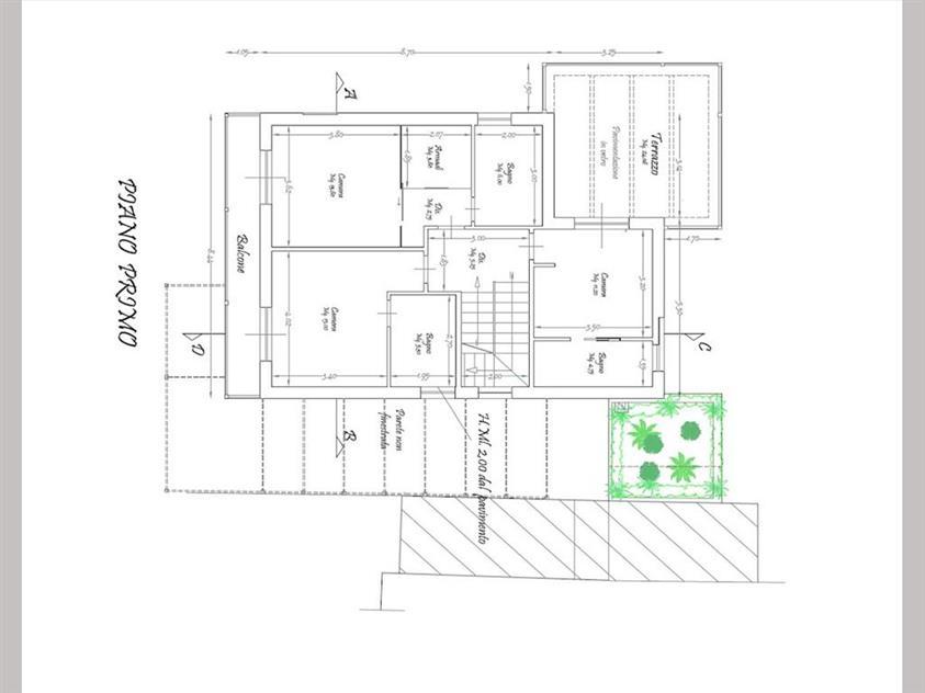
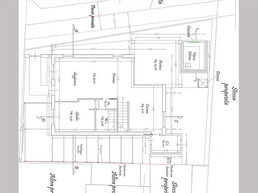
RIF 851 Forte dei Marmi, a soli 300 metri dalla spiaggia, vendesi splendida villa singola in costruzione con vasca idromassaggio. Elevata su due piani fuori terra oltre a sottotetto, la villa è così disposta: PIANO TERRA - ampio soggiorno pranzo, cucina, camera, bagno e centrale termica/lavanderia oltre a portico e pergolato per il living esterno. PIANO PRIMO - tre camere da letto matrimoniali ognuna col proprio bagno (ed una con cabina armadi) oltre a terrazza. PIANO SOTTOTETTO - Ampio mansarda con camera e bagno Consegna prevista a fine 2024

