Valutazione immobiliare indipendente, accurata e gratuita
Ufficio in vendita a Capannori in zona Lunata a 350.000 € (cod.652e5556)
Caasa non ha sufficienti informazioni per commentare l'ufficio in vendita a Capannori in zona Lunata - 652e5556.
Analisi immobiliare
I dati in posseso di Caasa per quest'immobile sono insufficienti, inaffidabili o contraddittori per proporre un'analisi attendibile.
Mercato immobiliare a Capannori
Per quanto riguarda più in generale la città di Capannori, sono presenti al momento più di 300 annunci per
uffici in vendita (meno di un terzo dell'intera provincia)
e il maggior numero di annunci per questa tipologia sono relativi proprio alla zona di Lunata.
La richiesta media nella zona dove sorge l'ufficio (Lunata pressi Via Pesciatina) è pari a
1.440 €/m² e ne fa la più pregiata della città .
Possiamo inoltre considerare che in tutta la città negli ultimi 6 mesi, i prezzi per uffici in vendita sono
in sostanziale aumento (+5,28%).
NOVITÀ Il risultato che vedi dipende dai dati che siamo riusciti ad estrarre dall'annuncio: ottieni una stima più accuranta di questo immobile, inserendo dati più precisi.
N.B. L'Opinione di Caasa® è un servizio sperimentale realizzato tramite tecniche di Intelligenza Artificiale, fornito senza alcuna garanzia di correttezza e completezza. Leggi il disclaimer o segnalaci un problema.
IMMAGINI
IN SINTESI
PROPOSTO DA:
DEI IMMOBILIARE DI MANUEL DEI
DESCRIZIONE
con posto auto con termocondizionamento con balcone con riscaldamento autonomo
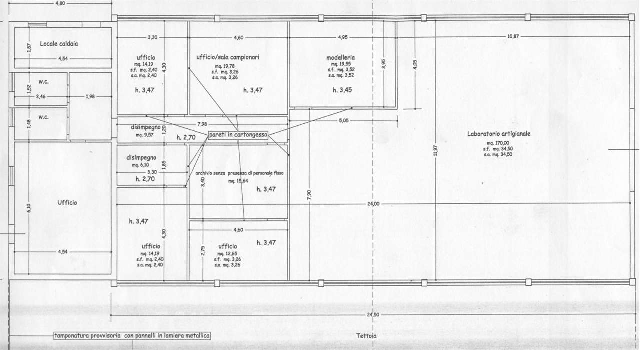
Nel comune di CAPANNORI a Segromigno, capannone artigianale in ottime condizioni di circa 450 mq diviso in grande vano ad uso laboratorio, zona uffici corredati da servizi igienici e ampia tettoia esterna a uso magazzino. A corredo piazzale esterno di circa 500 mq per carico e scarico merci e ampia tettoia esterna ad uso magazzino supplementare. Possibilità di cambiare la destinazione d'uso in residenziale creando piu' unità abitative. PER MOTIVI DI PRIVACY L'INDIRIZZO INDICATO NELL'ANNUNCIO NON CORRISPONDE ALLA REALE UBICAZIONE DELL'IMMOBILE. CONTATTACI PER AVERE PIÙ DETTAGLI. PUOI TROVARE TUTTE LE OFFERTE AGGIORNATE SUL NOSTRO SITO INTERNET: www.deimmobiliare.com SEGUICI ANCHE SULLA NOSTRA PAGINA FACEBOOK Dei Immobiliare D E I I M M O B I L I A R E - Via Pesciatina 173 Lunata (LU) TEL UFFICIO: 0583.920498 CELL. 329.3166782 - EMAIL: studioimdei@gmail.com SELEZIONIAMO CON CURA GLI IMMOBILI PIU' INTERESSANTI, NELLE VARIE ZONE DELLA PROVINCIA DI LUCCA. CONTATTACI PER RICHIESTE E INFORMAZIONI AGGIUNTIVE. 258,78 kWh/m2 a



