Valutazione immobiliare indipendente, accurata e gratuita
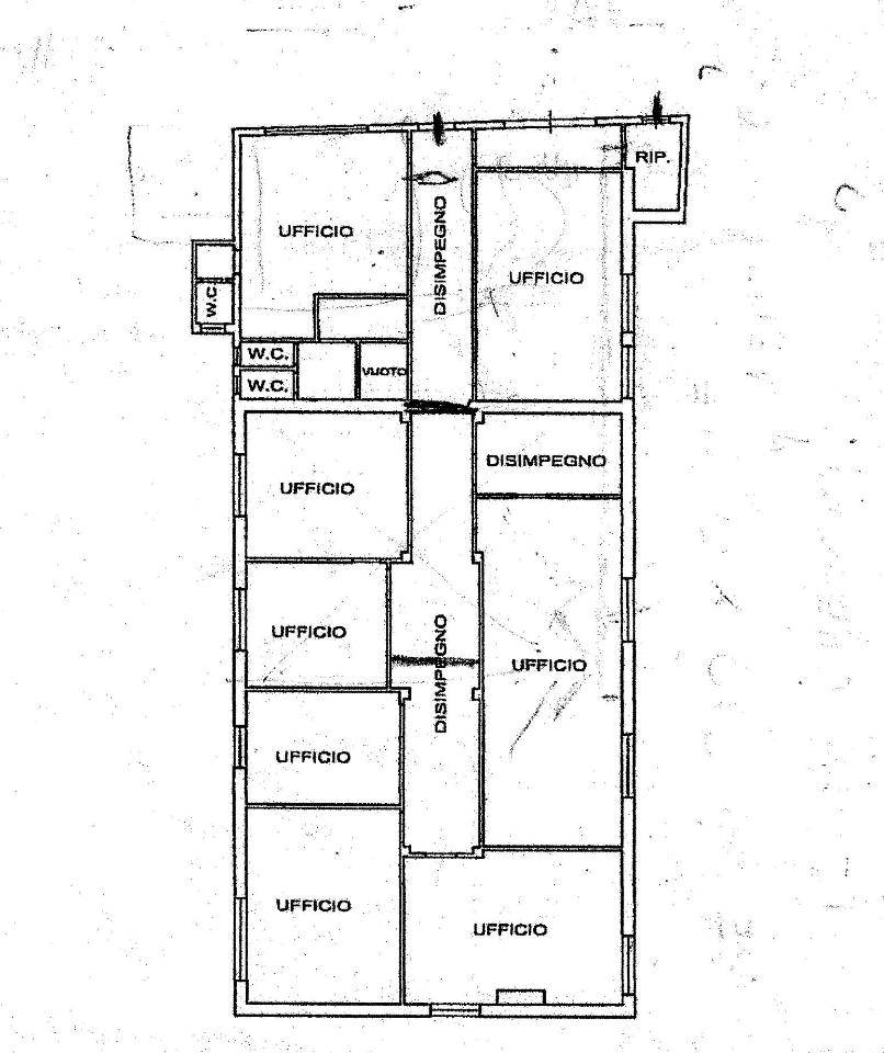
Appartamento in vendita a Capannori in zona Marlia a 150.000 € (cod.650565c5)
Caasa non ha sufficienti informazioni per commentare l'appartamento in vendita a Capannori in zona Marlia - 650565c5.
Analisi immobiliare
I dati in posseso di Caasa per quest'immobile sono insufficienti, inaffidabili o contraddittori per proporre un'analisi attendibile.
Mercato immobiliare a Capannori
Per quanto riguarda più in generale la città di Capannori, sono presenti al momento ben circa mille annunci per
appartamenti in vendita (meno del 10% dell'intera provincia)
e il maggior numero di annunci per questa tipologia sono relativi alla zona di Lunata, mentre nella zona di Marlia è presente un numero significativamente inferiore di annunci.
La richiesta media nella zona dove sorge l'appartamento (Marlia pressi Via dei Ceccotti) è pari a
2.075 €/m², molto vicina ai valori della zona Lammari che sono i più alti della città .
Relativamente alla dinamica dei prezzi, possiamo dire che negli ultimi 6 mesi i prezzi medi in tutta la città per appartamenti in vendita sono
in sostanziale aumento (+7,29%).
NOVITÀ Il risultato che vedi dipende dai dati che siamo riusciti ad estrarre dall'annuncio: ottieni una stima più accuranta di questo immobile, inserendo dati più precisi.
N.B. L'Opinione di Caasa® è un servizio sperimentale realizzato tramite tecniche di Intelligenza Artificiale, fornito senza alcuna garanzia di correttezza e completezza. Leggi il disclaimer o segnalaci un problema.
IMMAGINI
IN SINTESI
PROPOSTO DA:
Sist3ma.it real estate Lucca








