Valutazione immobiliare indipendente, accurata e gratuita
Casa indipendente in vendita a Capannori in zona Lunata a 260.000 € (cod.64f95b67)
Caasa non ha sufficienti informazioni per commentare la casa indipendente a Capannori in zona Lunata - 64f95b67.
Analisi immobiliare
I dati in posseso di Caasa per quest'immobile sono insufficienti, inaffidabili o contraddittori per proporre un'analisi attendibile.
Mercato immobiliare a Capannori
Per quanto riguarda più in generale la città di Capannori, sono presenti al momento ben circa 2.000 annunci per
case indipendenti in vendita (meno del 10% dell'intera provincia)
e il maggior numero di annunci per questa tipologia sono relativi alla zona di Marlia, ma anche la zona di Lunata è molto attiva dal punto di vista immobiliare.
La richiesta media nella zona dove sorge la casa indipendente (Lunata pressi Via Pesciatina) è pari a
1.815 €/m², molto vicina ai valori della zona Marlia che sono i più alti della città .
La dinamica dei prezzi in tutta la città mostra che negli ultimi 6 mesi, i prezzi per case indipendenti in vendita sono
sostanzialmente stabili (+0,90%).
NOVITÀ Il risultato che vedi dipende dai dati che siamo riusciti ad estrarre dall'annuncio: ottieni una stima più accuranta di questo immobile, inserendo dati più precisi.
N.B. L'Opinione di Caasa® è un servizio sperimentale realizzato tramite tecniche di Intelligenza Artificiale, fornito senza alcuna garanzia di correttezza e completezza. Leggi il disclaimer o segnalaci un problema.
IMMAGINI
IN SINTESI
PROPOSTO DA:
DEI IMMOBILIARE DI MANUEL DEI
DESCRIZIONE
di recente costruzione con giardino con posto auto con cantina con cucina abitabile con termocondizionamento con balcone di recente costruzione di nuova costruzione con riscaldamento autonomo
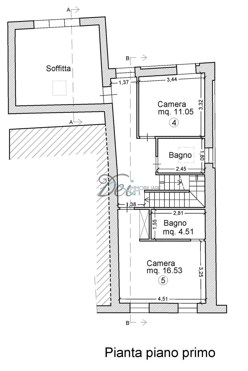
SEGROMIGNO IN PIANO - In corte tranquilla e vicina a tutti i servizi, terratetto centrale di 180 mq in fase di realizzazione. L'immobile è su due livelli oltre mansarda e avrà la seguente disposizione interna: PIANO TERRA: ingresso, disimpegno, grande zona giorno con accesso al giardino, cucina abitabile con accesso al giardino, bagno e ripostiglio; PRIMO PIANO: disimpegno, due camere matrimoniali, camera doppia e due bagni; SECONDO PIANO: mansarda di 25 mq allo stato grezzo che è possibile ultimare su richiesta e utilizzare come quarta camera o vano multiuso. L'abitazione è corredata da resede pavimentata e giardino di circa 300 mq sul retro, esposto a sud, dove si puó godere di assoluta privacy. Tre posti auto privati e possibilità di parcheggiare anche due auto davanti all'ingresso. La casa verrà realizzata con materiali di qualità e avrà ottime finiture personalizzabili. Classe energetica prevista: A/B. Consegna entro un anno dalla firma. Esiste inoltre la possibilità di ottenere una detrazione di 48.000 EURO sul prezzo totale grazie alle agevolazioni per il recupero del patrimonio edilizio. Possiamo fornire più informazioni a riguardo su richiesta. PER MOTIVI DI PRIVACY L'INDIRIZZO INDICATO NELL'ANNUNCIO NON CORRISPONDE ALLA REALE UBICAZIONE DELL'IMMOBILE. PUOI TROVARE TUTTE LE OFFERTE AGGIORNATE SUL NOSTRO SITO INTERNET: www.deimmobiliare.com SEGUICI ANCHE SULLA NOSTRA PAGINA FACEBOOK Dei Immobiliare D E I I M M O B I L I A R E -Via Pesciatina 173 Lunata (LU) TEL UFFICIO: 0583.920498 CELL. 329.3166782 - EMAIL: studioimdei@gmail.com SELEZIONIAMO CON CURA GLI IMMOBILI PIU' INTERESSANTI, NELLE VARIE ZONE DELLA PROVINCIA DI LUCCA. CONTATTACI PER RICHIESTE E INFORMAZIONI AGGIUNTIVE. CLASSE ENERGETICA: 3,51 kWh/m2 a



