Valutazione immobiliare indipendente, accurata e gratuita
Casa indipendente a Capannori in zona Segromigno in Monte a 257.000 € (cod.64ec9016)
Caasa non ha sufficienti informazioni per commentare la casa indipendente a Capannori Segromigno in Monte - 64ec9016.
Analisi immobiliare
I dati in posseso di Caasa per quest'immobile sono insufficienti, inaffidabili o contraddittori per proporre un'analisi attendibile.
Mercato immobiliare a Capannori
Per quanto riguarda più in generale la città di Capannori, sono presenti al momento ben circa 2.000 annunci per
case indipendenti in vendita (meno del 10% dell'intera provincia)
e il maggior numero di annunci per questa tipologia sono relativi alla zona di Marlia, mentre la zona di Segromigno in Monte risulta molto meno attiva considerando il numero di annunci presenti.
La richiesta media nella zona dove sorge la casa indipendente (Segromigno in Monte pressi Via delle Ville) è pari a
1.580 €/m², molto vicina ai valori della zona Marlia che sono i più alti della città .
Possiamo inoltre considerare che in tutta la città negli ultimi 6 mesi, i prezzi per case indipendenti in vendita sono
sostanzialmente stabili (+0,90%).
NOVITÀ Il risultato che vedi dipende dai dati che siamo riusciti ad estrarre dall'annuncio: ottieni una stima più accuranta di questo immobile, inserendo dati più precisi.
N.B. L'Opinione di Caasa® è un servizio sperimentale realizzato tramite tecniche di Intelligenza Artificiale, fornito senza alcuna garanzia di correttezza e completezza. Leggi il disclaimer o segnalaci un problema.
IMMAGINI
IN SINTESI
DESCRIZIONE
di nuova costruzione con posto auto con cantina con garage di recente ristrutturazione con termocondizionamento con terrazza di nuova costruzione
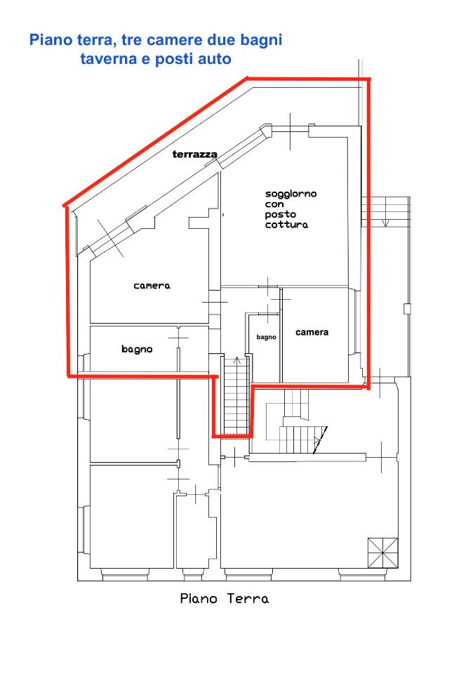
vendita via delle ville trilocale 100mq Capannori Lucca Toscana appartamento al primo piano terra completamente ristrutturato con tre camere taverna e terrazzo. segromigno in monte la residenza sita al piano terra si compone da ingresso soggiorno con […]
