Valutazione immobiliare indipendente, accurata e gratuita

Appartamento in vendita a Capannori in zona Segromigno in Monte a 320.000 € (cod.64ec268c)

Caasa non ha sufficienti informazioni per commentare l'appartamento a Capannori Segromigno in Monte - 64ec268c.

Analisi immobiliare
I dati in posseso di Caasa per quest'immobile sono insufficienti, inaffidabili o contraddittori per proporre un'analisi attendibile.
Mercato immobiliare a Capannori
Per quanto riguarda più in generale la città di Capannori, sono presenti al momento circa mille annunci per appartamenti in vendita (meno del 10% dell'intera provincia) e il maggior numero di annunci per questa tipologia sono relativi alla zona di Lunata, mentre la zona di Segromigno in Monte risulta molto meno attiva considerando il numero di annunci presenti.
La richiesta media nella zona dove sorge l'appartamento (Segromigno in Monte) è pari a 1.850 €/m², molto vicina ai valori della zona Marlia che sono i più alti della città .
Per quanto riguarda la dinamica dei prezzi, negli ultimi 6 mesi i prezzi medi in tutta la città per appartamenti in vendita sono in sostanziale aumento (+7,29%).

NOVITÀ Il risultato che vedi dipende dai dati che siamo riusciti ad estrarre dall'annuncio: ottieni una stima più accuranta di questo immobile, inserendo dati più precisi.

N.B. L'Opinione di Caasa® è un servizio sperimentale realizzato tramite tecniche di Intelligenza Artificiale, fornito senza alcuna garanzia di correttezza e completezza. Leggi il disclaimer o segnalaci un problema.

IMMAGINI

IN SINTESI

Prezzo:
320.000 €
Superficie:
120 m²
Prezzo al m²:
2666 €/m²
Piano:
Bagni:
2
Classe energetica:
D
Città:
Capannori (LU)
Zona OMI:
D2 (S. COLOMBANO- SEGROMIGNO - CAMIGLIANO - ZONE - BORGONUOVO- PIANACCIE,CHIESA NUOVA)
Indirizzo:
Pubblicato:
mer 8 ottobre 2025

PROPOSTO DA:

Sist3ma.it real estate Lucca

DESCRIZIONE

di recente ristrutturazione con posto auto con cantina con garage di recente ristrutturazione con termocondizionamento con terrazza

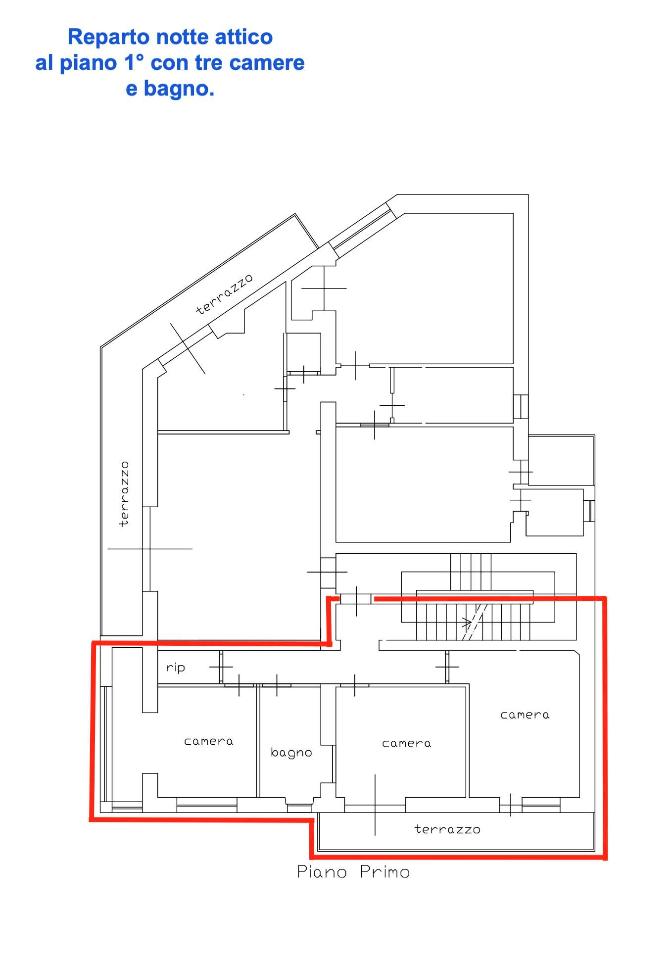
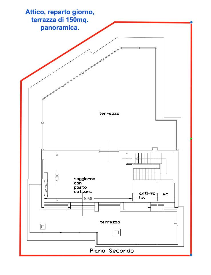
ESCLUSIVO E INTROVABILE ATTICO completamente ristrutturato con ampia terrazza di 150mq. che si affaccia sulle colline. Segromigno in Monte, la residenza sita al piano 2° si compone da ingresso soggiorno / zona cucina, antibagno e bagno, due grandi terrazze. Reparto notte, disimpegno tre camere, ripostiglio e bagno. Due posti auto e una cantina. In fase di ristrutturazione totale consegna dicembre 2026 . Possibilità di poter scegliere le rifiniture, pavimentazioni, porte , bagni ecc. Riscaldamento a pavimento con pompa di calore, infissi a taglio termico, previsione APE "C/D

  • immobiliare.it
  • wikicasa.free
  • bakeca.it
  • annuncio-casa.it
  • ioaffitto.it
  • yescasa.it