Valutazione immobiliare indipendente, accurata e gratuita

L'Opinione di Caasa® per l'appartamento in vendita a Capannori in zona Lunata a 275.000 € (cod.64e83d3b)

Secondo Caasa, per l'appartamento in vendita a Capannori in zona Lunata, la richiesta di 275.000 € è leggermente svantaggiosa rispetto agli annunci simili.

Analisi immobiliare
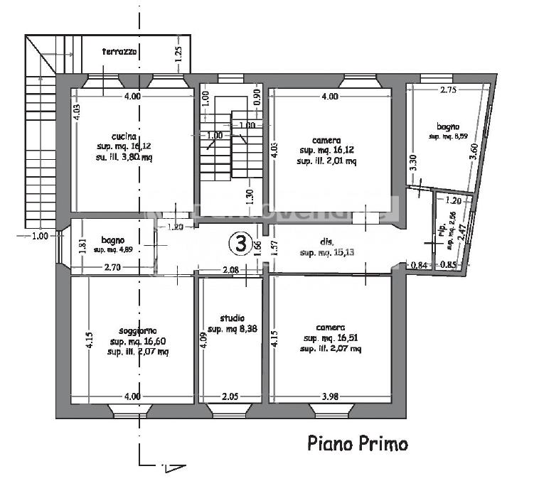
L'appartamento, situato nella zona OMI C1, è proposto in vendita a 275.000 € per una superficie commerciale di 141 m² e quindi ad un prezzo per metro quadrato pari a 1950 €/m² .
Tale valore è di poco superiore a quello stimato da Caasa per immobili in vendita simili per tipologia e caratteristiche e localizzati nella stessa zona OMI, che è compreso tra 1.732 €/m² e 1.910 €/m². Grazie alla conoscenza con buona approssimazione della localizzazione dell'immobile, è stato possibile utilizzare come raffronto i dati medi elaborati esattamente nella zona OMI di appertenenza (LUNATA, LAMMARI) per appartamenti (da 1.410 €/m² a 2.305 €/m²) e per case semindipendenti (da 1.030 €/m² a 2.235 €/m²). Anche se Caasa non è riuscita a determinare la classe energetica, ad affinare la stima ha contribuito anche la presenza di alcune caratteristiche significative come la disponibilità di una cantina. Per queste ragioni i valori accettabili per l'offerta costituiscono un intervallo relativamente limitato.

Mercato immobiliare a Capannori
Per quanto riguarda più in generale la città di Capannori, sono presenti al momento circa mille annunci per appartamenti in vendita (meno del 10% dell'intera provincia) e il maggior numero di annunci per questa tipologia sono relativi proprio alla zona di Lunata.
La richiesta media nella zona dove sorge l'appartamento (Lunata) è pari a 1.910 €/m², molto vicina ai valori della zona Marlia che sono i più alti della città .
La dinamica dei prezzi in tutta la città mostra che negli ultimi 6 mesi, i prezzi per appartamenti in vendita sono in sostanziale aumento (+7,29%).

NOVITÀ Il risultato che vedi dipende dai dati che siamo riusciti ad estrarre dall'annuncio: ottieni una stima più accuranta di questo immobile, inserendo dati più precisi.

N.B. L'Opinione di Caasa® è un servizio sperimentale realizzato tramite tecniche di Intelligenza Artificiale, fornito senza alcuna garanzia di correttezza e completezza. Leggi il disclaimer o segnalaci un problema.

IMMAGINI

IN SINTESI

Prezzo:
275.000 €
Superficie:
141 m²
Prezzo al m²:
1950 €/m²
Piano:
(SENZA ascensore)
Bagni:
2
Classe energetica:
n.d.
Città:
Capannori (LU)
Zona OMI:
C1 (LUNATA,LAMMARI)
Indirizzo:
Aggiornato:
sab 4 ottobre 2025

PROPOSTO DA:

PUNTO AFFITTO.

DESCRIZIONE

con cantina con cucina abitabile con terrazza con balcone senza ascensore

RIF. 9244 - LUMINOSO APPARTAMENTO IN FASE DI RISTRUTTURAZIONE A LUNATA - In piccolo condominio di sole quattro unità in fase di totale ristrutturazione vendesi appartamento di circa 140mq posto al piano primo con ingresso indipendente e ampio ripostiglio esterno di 13 mq. L'appartamento si compone di ingresso in cucina abitabile con terrazzo, soggiorno, due bagni finestrati, due camera matrimoniale, studio e ripostiglio. L'immobile sarà dotato di finiture di alto livello, con soffitti con travi e travicelli, infissi in PVC con vetrocamera, portoncino blindato, impianto TV satellitare. La zona condominiale dove si trovano i parcheggi delle unità abitative saranno totalmente recintati e l'ingresso avverrà tramite due cancelli, pedonale e carrabile

  • immobiliare.it
  • bachecacase.com
  • pcase.it
  • bakeca.it