Valutazione immobiliare indipendente, accurata e gratuita

Casa indipendente in vendita a Camaiore in zona Lido di Camaiore a 790.000 € (cod.64e444c7)

Caasa non ha sufficienti informazioni per commentare la casa indipendente a Camaiore Lido di Camaiore - 64e444c7.

Analisi immobiliare
I dati in posseso di Caasa per quest'immobile sono insufficienti, inaffidabili o contraddittori per proporre un'analisi attendibile.
Mercato immobiliare a Camaiore
Per quanto riguarda più in generale la città di Camaiore, sono presenti al momento ben circa 2.000 annunci per case indipendenti in vendita (quasi il 20% dell'intera provincia) e il maggior numero di annunci per questa tipologia sono relativi proprio alla zona di Lido di Camaiore.
La richiesta media nella zona dove sorge la casa indipendente (Lido di Camaiore pressi Via Giosuè Carducci) è pari a 3.825 €/m² e ne fa la più pregiata della città .
La dinamica dei prezzi in tutta la città mostra che negli ultimi 6 mesi, i prezzi per case indipendenti in vendita sono in aumento (+3,81%).

NOVITÀ Il risultato che vedi dipende dai dati che siamo riusciti ad estrarre dall'annuncio: ottieni una stima più accuranta di questo immobile, inserendo dati più precisi.

N.B. L'Opinione di Caasa® è un servizio sperimentale realizzato tramite tecniche di Intelligenza Artificiale, fornito senza alcuna garanzia di correttezza e completezza. Leggi il disclaimer o segnalaci un problema.

IMMAGINI

IN SINTESI

Prezzo:
790.000 €
Superficie:
150 m²
Prezzo al m²:
5266 €/m²
Piano:
terra
Bagni:
3
Classe energetica:
n.d.
Città:
Camaiore (LU)
Zona OMI:
E3 (LIDO DI CAMAIORE - FOSSA DELL'ABATE)
Pubblicato:
mar 30 settembre 2025

PROPOSTO DA:

Lu.Ca Immobiliare

DESCRIZIONE

di recente costruzione con giardino con cucina abitabile di recente costruzione

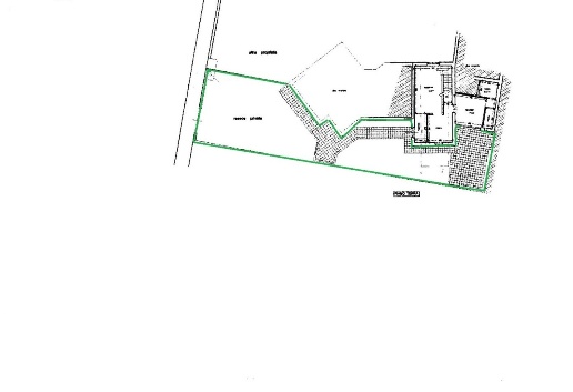
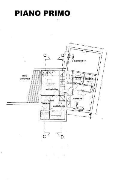
Lido Di Camaiore Villetta bifamiliare con ingresso indipendente a soli 100 mt dal mare Questa elegante proprietà si sviluppa su una superficie di 120 mq . L’immobile dispone di un doppio spazio esterno ben distribuito: all’ingresso, attraverso il passo carrabile, si accede a un primo tratto di giardino, ideale per il parcheggio e la sistemazione di piante ornamentali. Proseguendo, si apre una seconda area verde più riservata e accogliente, perfetta per momenti di relax all’aperto, attrezzata con tavolo per pranzo e cene all’esterno. Al piano terra: ingresso su soggiorno, cucina abitabile, tinello, un bagno di servizio e due comodi ripostigli. Al piano superiore abbiamo due camere matrimoniali con bagno en suite e salendo 3 scalini ci sono a disposizione altri 2 ambienti da poter utilizzare come camere /studio più un ulteriore bagno. La villetta è subito abitabile, ideale per chi desidera trasferirsi senza dover affrontare lavori urgenti. Allo stesso tempo, gli spazi interni ed esterni offrono ampie possibilità di personalizzazione, rendendo la casa perfetta anche per chi vuole viverla secondo i propri gusti ed esigenze. Richiesta 790.000€ trattabili Rif V1126 Offriamo un'esperienza ultra decennale nelle compravendite immobiliari, affitti, stime, assistenza tecnica, catastale e fiscale. LU.CA immobiliare con sede in Lido di Camaiore (LU) in Via del Fortino 68 si avvale di personale esperto e qualificato. Per informazioni Luca 3358735553 Federica 3458766971<b

  • yescasa.it
  • idealista.it