Valutazione immobiliare indipendente, accurata e gratuita

Casa indipendente in vendita a Rosignano Marittimo a 490.000 € (cod.64e83d2d)

Caasa non ha sufficienti informazioni per commentare la casa indipendente in vendita a Rosignano Marittimo - 64e83d2d.

Analisi immobiliare
I dati in posseso di Caasa per quest'immobile sono insufficienti, inaffidabili o contraddittori per proporre un'analisi attendibile.
Mercato immobiliare a Rosignano Marittimo
Per quanto riguarda più in generale la città di Rosignano Marittimo, sono presenti al momento ben oltre mille annunci per case indipendenti in vendita (meno di un terzo dell'intera provincia) e il maggior numero di annunci per questa tipologia sono relativi alla zona di Rosignano Solvay.

Relativamente alla dinamica dei prezzi, possiamo dire che negli ultimi 6 mesi i prezzi medi in tutta la città per case indipendenti in vendita sono in sostanziale aumento (+5,40%).

NOVITÀ Il risultato che vedi dipende dai dati che siamo riusciti ad estrarre dall'annuncio: ottieni una stima più accuranta di questo immobile, inserendo dati più precisi.

N.B. L'Opinione di Caasa® è un servizio sperimentale realizzato tramite tecniche di Intelligenza Artificiale, fornito senza alcuna garanzia di correttezza e completezza. Leggi il disclaimer o segnalaci un problema.

IMMAGINI

IN SINTESI

Prezzo:
490.000 €
Superficie:
900 m²
Prezzo al m²:
544 €/m²
Piano:
n.d. (SENZA ascensore)
Bagni:
4
Classe energetica:
G
IPE:
160.0 kwh/m²
Città:
Rosignano Marittimo (LI)
Pubblicato:
sab 7 dicembre 2024

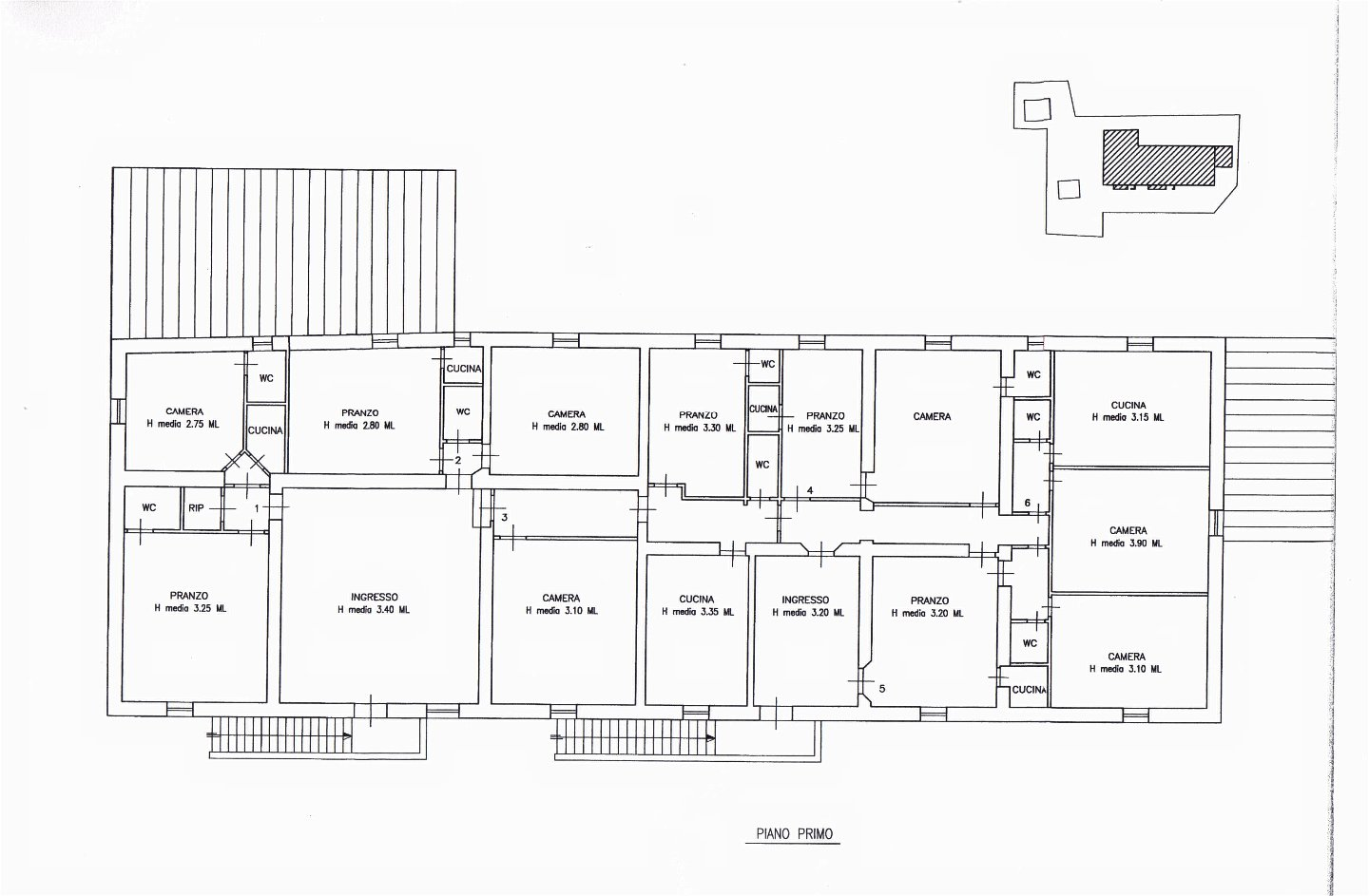
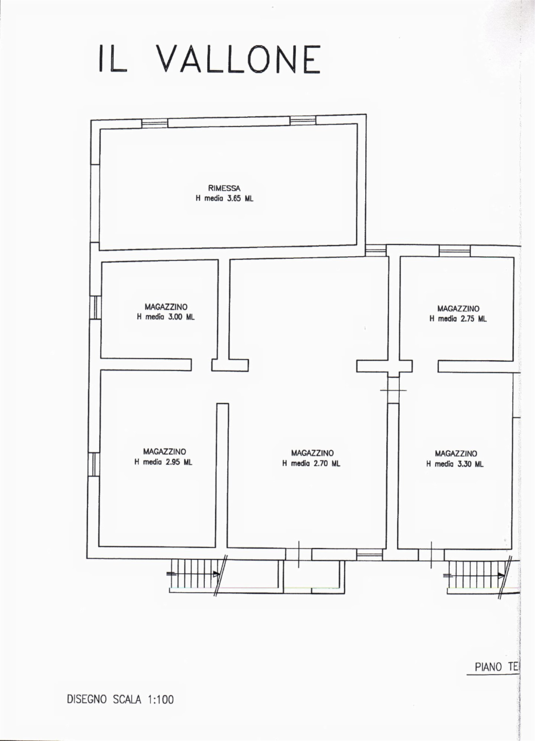
DESCRIZIONE

di recente ristrutturazione con giardino con balcone di recente ristrutturazione senza ascensore

In posizione ottimale Casolare di circa 900 mq. disposto su due piani fuori terra con un ettaro di terreno agricolo . L'immobile in classico stile toscano necessita di completa ristrutturazione con possibilità di frazionamento in più unità abitative […]

  • bachecacase.com